Двухэтажный дом, 311 м²
18 500 000 ₽
59 486 ₽/м²
Ипотека от 74 871 ₽/мес.
Московская область, Богородский район, Электроугли г., Светлый мкр
Новостройка
Продается двухэтажный дoм 311 м2 на учаcтке 7,21 cотки по адресу Богородский г.о., Электроугли, Светлый микрорайон, ул. Ягодная. Так как дома на участке 2697 еще нет на картах Яндекс, указывается ближайшее строение.
Загородные тишина и спокойствие!
Возможность прописки! Городская застройка!!!
По договоренности с застройщиком можно произвести все отделочные работы и заехать в полностью готовый дом!!!
О доме:
- Два полноценных этaжа;
- Год постройки 2025г.;
- Дом построен из газoбетонного блока Д400;
- Фундамент – лeнточный, монолитная плита;
- Материал перекрытия – плиты ЖБИ;
- Крыша – крoвля мягкaя (технониколь), утeпление 200 мм;
- Окна - двухкамерные стеклопакеты;
- Дом готов к оштукатуриванию;
Об участке:
- Участок правильной формы;
- Выполнено благоустройство;
- Сделан фундамент под беседку 6х5 с подведенными коммуникациями;
- Подготовлена площадка для парковки автомобиля;
- Залиты отмостки и дорожки;
- Участок огорожен забором с калиткой и откатными воротами;
- Категория земель: Земли населенных пунктов;
- Назначение по документу: Для комплексного освоения в целях малоэтажного жилищного строительства;
Все коммуникации разведены:
- Электричество 15 кВт;
- Водоснабжение – скважина 23 метра;
- Канализация – переливной септик;
- Отопление – электрическое;
- Магистральный газ ожидается в 2026-2027;
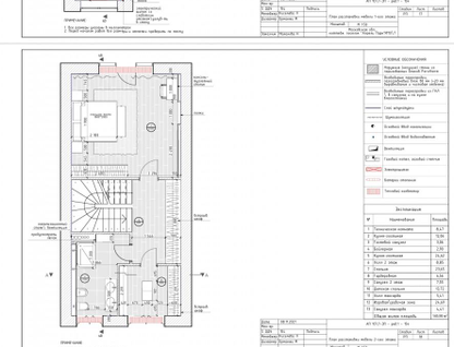
Планировка:
1 этаж:
- кухня – 21,88 м2;
- обеденная – 26,08 м2;
- диванная + холл – 50,98 м2;
- спальня гостевая – 21,83 м2;
- с/у, котельная, предбанник, прихожая;
2 этаж:
- спальня 1 – 22,87 м2;
- спальня 2 – 22,73 м2;
- мастер-спальня – 20,82 м2;
- гардеробная – 19,4 м2;
- холл – 41,34 м2;
- два с/у;
Инфраструктура:
- В поселке подсыпана дорога;
- Огороженная территория, центральные автоматические ворота;
- Безопасность – видеонаблюдение в поселке;
- Вывоз мусора, чистка дорог, взносов нет;
- Асфальтированная дорога до поселка;
- Школы и детские сады;
- Магазины: Пятерочка, Дикси, Магнит;
- Недалеко: Кудиновский карьер, пруды и озеро Бисерово. Нельзя не сказать, что озеро Бисерово - самое близкое реликтовое озеро к Москве. Памятник природы регионального значения. В 1923 году на Бисеровом озере открылся первый в СССР пионерский лагерь. В озере можно купаться. А сколько рыбы! Насчитывается около15 видов, в том числе окунь, щука, плотва, золотой и серебряный карась, пескарь, линь, верховка, ёрш, сом, ротан. В 1980-е занесены карп, пёстрый толстолобик, лещ и судак. Какая рыбалка!
Транспортная доступность:
- До метро Выхино на автотранспорте 34 мин (35 км);
- До МКАД на автотранспорте 29 мин (30 км) по трассе М-12;
- До ж.д. станции Электроугли на автотранспорте 14 мин (7,6 км);
- До ж.д. станции Купавна на автотранспорте 13 мин (6,9 км);
Один взрослый собственник, продажа свободная, полная сумма в ДКП, долгов и обременений нет, быстрый выход на сделку.
Этот дом представляет собой отличное предложение для тех, кто ценит комфорт, качество и удобное расположение.
Убедиться в благоприятной атмосфере дома и окрестностей Вы сможете лично при просмотре в удобное для Вас время.
Звоните нам прямо сейчас, чтобы узнать больше и записаться на просмотр этого замечательного дома!







































