Комната, 18 м²

Номер лота: 134606218

Московская область, Ногинский район, Ногинск г., 7-ая Черноголовская ул., д.3

1/13

  • 18 м²

    Площадь комнаты

  • 12 м²

    Кухня

  • 1

    Этаж

  • Прямая продажа
  • Возможен торг
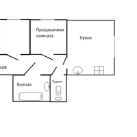
Продаётся 1/3 доля в трёхкомнатной коммунальной квартире. Дом двухэтажный кирпичный, 1 этаж. Общая площадь квартиры 76,2 м. В пользовании — комната 18 м (жилая площадь). Доля в местах общего пользования (кухня, коридор, раздельный санузел) — 25,5 м общей площади.Отопление центральное. Остановка в 130 м. Рядом школы, детские сады, магазины Пятёрочка и Дикси. Во дворе детская и спортивная площадки. Один взрослый собственник. Долгов по коммунальным платежам нет. Продажа с соблюдением преимущественного права покупки (уведомление соседей будет/направлено). Цена указана за долю.

Подробнее о квартире

  • Площадь комнаты 18 м²
  • Жилая площадь 18 м²
  • Площадь кухни 12 м²
  • Этаж 1
  • Ремонт Косметический

Подробнее о доме

  • Тип дома Кирпичный
  • Тип территории Открытая
  • Количество этажей 2
  • Отопление Центральное

Расположение и инфраструктура

Купите в ипотеку

Поиск исполнителей

Выберите услугу, чтобы увидеть
список надёжных компаний

  • Оценка

    Оценка квартир, домов и земельных участков, коммерческих помещений

Похожие комнаты