Трехэтажный коттедж, 500 м²

Номер лота: 135189667

Москва, Милюково д., д.224

1/27

  • 500 м²

    Площадь дома

  • 15 сот.

    Площадь участка

  • 2021

    Год постройки

  • Прямая продажа
  • Возможен торг

Коттедж вашей мечты

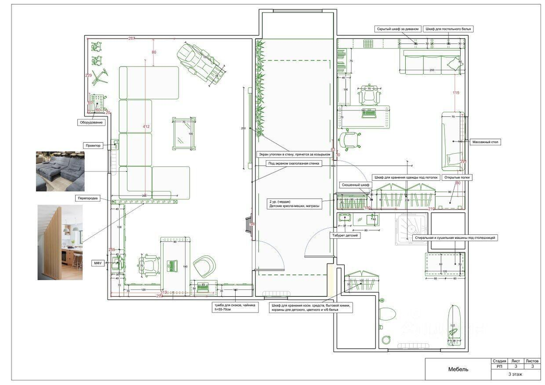
Новый дом с отделкой и мебелью 500 кв.м на участке 15 cот. Кол-во спален: 5. Кол-во с/у: 4. Коттеджный поселок Чистые Ключи. Киевское шоссе, 25 км от МКАД. 1 этаж: холл, кухня + гостиная с камином, СПА-зона с бассейном и сауной + тренажеры, с/у. Бойлерная, гараж на 2 автомобиля. Веранда под летнюю кухню. 2 этаж: спальная комната владельцев дома со своей ванной и гардеробной комнатами, на этаже еще 2 спальные комнаты, ванная комната. 3 этаж: Кинотеатр 4К + кабинет, гостевая комната, ванная комната, игровой чердак для детей. На участке есть второй дом для персонала (или гостей). 100м2, холл, 4 спальни, 2 с/у, кухня + гостиная. Коммуникации центральные, эл-во 30 кВт, газовое оборудование Buderus, система теплых полов, вакуумный пылесос по всему дому, интернет оптоволокно. Конструктив: фундамент ленточный, стены - кирпич, перекрытия и лестница - монолит, фасад - клинкер, камень декоративный, штукатурка, кровля - металлочерепица, панорамное остекление. Особенности: Дом построен 2021г. Тщательная проработка функционала и эргономики с дизайнером и планировщиком пространств. Почти вся мебель делалась под заказ. Состояние дома и мебели - идеальное! В бассейне стоит система озонирования воды! (лучшая в мире по очистке на сегодня. Воду из бассейна можно пить. Никакая химия не используется вовсе). Мощная система противотока, покрывало для воды (вода в бассейне +32С), приточно-вытяжная система кондиционирования. Такая вода идеальна для плавания детей и взрослых. На 3м этаже есть кабинет совмещенный с кинотеатром. Сам проектор ультра-короткофокусный, настоящие 4К. Экран ALR - 120 дюймов (около 3 м). Мощный саундбар с сандбуфером. Звук и картинка в фильмах потрясающая. На территории ландшафтный дизайн (около 100 разных деревьев, кустов, туй). Есть плодовые деревья и кусты: яблони, черешня, сливы, голубика, жимолость, шелковица. Дорожки с подсветкой. Автоматические ворота. Соседи с двух сторон, все построены и живут. Тихо, красиво. Идеально для комфортной жизни :) Элитный коттеджный посёлок бизнес-класса Чистые Ключи. Киевское ш., 25км от МКАД, Прописка Москва. Дороги зимой чистят. Фонари по всему посёлку. На территории есть частный детский сад и школа (группы 5-10 чел), большая оборудованная детская площадка, красивый пруд с утками, футбольное поле, турники и др. Посёлок на 95% застроен и жилой. Высокостатные соседи. Внушительная охрана с регулярным патрулём. Качественная и удобная поддержка всех коммунальных служб, причём поселковые оплаты совсем не большие. Свободная продажа, подходит под ипотеку. Дом полностью готов к комфортной жизни за городом. Показы по договорённости

Подробнее о доме

  • Год постройки 2021
  • Тип дома Кирпичный
  • Количество комнат 5
  • Общая площадь 500 м²
  • Этаж 3
  • Ремонт Дизайнерский

Подробнее об участке

  • Площадь участка 15 сот.

Коммуникации и удобства

  • Подъездные пути Асфальт
  • Отопление Центральное
  • Канализация Централизованная
  • Электричество 30 кВт
  • Вода Водопровод
  • Дополнительно Сауна

Расположение и инфраструктура

Купите в ипотеку

Поиск исполнителей

Выберите услугу, чтобы увидеть
список надёжных компаний

  • Оценка

    Оценка квартир, домов и земельных участков, коммерческих помещений

Похожие объекты