Одноэтажный дом, 108 м²

Номер лота: 134690726

Московская область, Истринский район, Истра г., Подпорино д.

1/22

  • 108 м²

    Площадь дома

  • 8 сот.

    Площадь участка

  • Прямая продажа

Новый дом истринском районе

Продается одноэтажный дом 108м на ровном сухом участке 8 соток. Дом строили для себя! Использовали самые качественные материалы. Отделка White box, полностью готов к чистовой. •Фундамент: Монолитная плита 12х13м, толщиной 350мм, арматура 14мм А500С, бетон М300. Песчаная подготовка, гидроизоляция, ППС. Отмостка, дренаж, ливневая канализация. • Несущие стены: Газоблок D500, толщиной 40см, с армопоясом. Снаружи стены отделаны панелями из ппс 50мм с клинкерной плиткой. Забор штакетник оцинкованный, цвет графит, откатные автоматические ворота. • Кровля: Металлочерепица, утеплитель, деревянные конструкции обработаны огнебиозащитой. • Внутренняя отделка: Внутренние перегородки из газоблока D500 толщиной 300мм. Штукатурка, шпаклёвка. Обустроена стяжка. На потолке влагостойкая OSB-3. Входная дверь с терморазрывом, что обеспечит меньшую потерю тепла, доп.звукоизоляцию, защиту от промерзания. ПВХ окна из профиля 70мм, снаружи ламинация антрацит серый, фурнитура Roto. • Электричество,: 15 кВт, вся электропроводка разведена по точкам, есть кабельный журнал. Разводка в ПВХ гофре по потолку. Разведена слаботочка: интернет, ТВ, домофон, усилитель сотовой связи. Снаружи дома фасадные светильники по всему периметру. • Отопление: Мини котельная 15 MK-S Zota. Теплый пол. В стяжке разведены трубы с теплоносителем, все это подключено к котлу. У электрокотла есть эконлмичный режим. Очень качественная система. Смонтирована приточно - вытяжная вентиляция. • Водоснабжение и канализация: Скважина, глубиной 45м, оборудована всем необходимым. Септик Биолос на 6 человек, с греющим кабелем. Дом строили для себя, для постоянного проживания. Осталась чистовая отделка, мебель, сантехника. Все системы смонтированы. Все материалы самого высокого качества. Дополнительную информацию по оборудованию, стройматериалам предоставим. Дом расположен в экологически чистом районе Подмосковью, Дер.Подпорино, го Истра. Удобная локация: рядом ЦКАД, которое пересекает Волоколамское шоссе, чуть дальше Новорижское, в другую сторону Ленинградское шоссе, рядом Пятницкое. Все нужные документы предоставим, никаких обременений нет, быстрый выход на сделку. Показ по предварительной договорённости.

Подробнее о доме

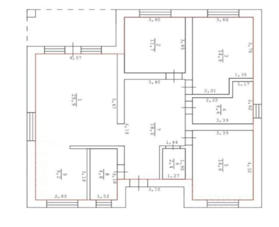
  • Количество комнат 4
  • Общая площадь 108 м²
  • Этаж 1
  • Ремонт Требует ремонта

Подробнее об участке

  • Вид разрешенного использования участка Приватизированная
  • Площадь участка 8 сот.

Коммуникации и удобства

  • Отопление Электрокотел
  • Канализация Локальная
  • Электричество 15 кВт
  • Вода Скважина

Расположение и инфраструктура

Купите в ипотеку

Поиск исполнителей

Выберите услугу, чтобы увидеть
список надёжных компаний

  • Оценка

    Оценка квартир, домов и земельных участков, коммерческих помещений

Похожие объекты