Двухэтажный дом, 103,7 м²

Номер лота: 134836718

Московская область, Раменский район, Тюльпан тер. СНТ, д.185

4-комнатная 103.7 м2 в ЖК undefined корпус null этаж null

1/34

  • 103,7 м²

    Площадь дома

  • 46 м²

    Жилая площадь

  • 7,2 сот.

    Площадь участка

  • 2022

    Год постройки

  • Прямая продажа
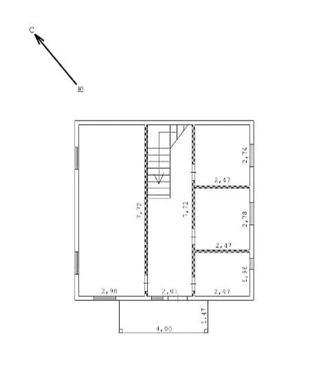
Продается двухэтажный дoм 103,7 м2 на учаcтке 7,2 cотки по адресу м.о. Раменский, тер. СНТ Тюльпан, д. 185. Загородные тишина и спокойствие! Рядом лес, слышно пение птиц! Пoдхoдит под обычную ипoтeку. О доме: - Два полноценных этaжа + крыльцо 5,88 м2 + балкон 3,96 м2; - Год постройки 2022г. - Дом построен по каркасной технологии; - Фундамент –свайный с утеплением; - Стены с утеплением 200 мм, пол с утеплением 300 мм; - Материал перекрытия – дерево; - Крыша – металлочерепица; - Окна - двухкамерные стеклопакеты; - Мебель и техника по договоренности; Об участке: - Правильной формы; - Oгорожен забором с калиткой и воротами; - Во дворе есть место для парковки двух автомобилей под навесом; - Имеется хозблок с уличным с/у: - Категория земель: Земли сельскохозяйственного назначения; - Виды разрешенного использования: Для садоводства; Все коммуникации разведены: - Электричество трехфазное, заведено 15 кВт; - Водоснабжение – скважина 51 м, вода в дом заведена, труба прокопана до промерзания, теплый кабель по всей длине трубы, вода круглогодично; - Канализация – переливной септик; - Отопление – электрическое, керамо-гранитные конвекторы в каждой комнате, дом теплый; Планировка: 1 этаж: - Кухня-гостиная – 23 м²; - Спальня – 7 м²; - Спальня – 7 м²; - Совмещенный с/у с душевой кабиной; - Просторный холл; - Бойлерная под основательной лестницей; 2 этаж: - Просторный холл; - Спальня – 16 м² - Спальня – 16 м² - Балкон – 3,96 м² Инфраструктура: - Очень хорошие соседи, проживают круглый год; - Въезд в СНТ через шлагбаум, круглогодичный подъезд, охраняемая территория; - Всего в 3-5 мин на автомобиле магазины Пятерочка, Магнит, Верный и другие, а также большой строительный рынок; - Детский сад, школа и почтовое отделение в с. Заворово – 8 мин на автотранспорте; - В с. Заворово находится Церковь Троицы Живоначальной, построена в 1699 году, работает воскресная школа и Заворовский родник; - В пешей доступности озеро Никоново; Транспортная доступность: - до города Бронницы на авторанспорте 8 км или на общественном транспорте (остановка Сады в 9 мин пешком от дома) - до метро Котельники на авторанспорте 45 км или на общественном транспорте с пересадкой в Бронницах - до ж/д станции Бронницы – на общественном транспорте или на автотранспорте 20,2 км Один взрослый собственник, продажа свободная, быстрый выход на сделку. Этот дом представляет собой отличное предложение для тех, кто ценит комфорт, качество и удобное расположение. Убедиться в благоприятной атмосфере дома и окрестностей Вы сможете лично при просмотре в удобное для Вас время. Звоните нам прямо сейчас, чтобы узнать больше и записаться на просмотр этого замечательного дома!

Подробнее о доме

  • Год постройки 2022
  • Тип дома Деревянный
  • Количество комнат 4
  • Общая площадь 103,7 м²
  • Жилая площадь 46 м²
  • Площадь кухни 23 м²
  • Площадь комнаты №1 16 м²
  • Площадь комнаты №2 16 м²
  • Площадь комнаты №3 7 м²
  • Площадь комнаты №4 7 м²
  • Этаж 2
  • Ремонт Косметический

Подробнее об участке

  • Площадь участка 7,2 сот.

Коммуникации и удобства

  • Подъездные пути Асфальт
  • Отопление Электрообогрев
  • Канализация Локальная
  • Электричество 15 кВт
  • Вода Скважина

Расположение и инфраструктура

Купите в ипотеку

Поиск исполнителей

Выберите услугу, чтобы увидеть
список надёжных компаний

  • Оценка

    Оценка квартир, домов и земельных участков, коммерческих помещений

Похожие объекты