Студия, 28 м²

Номер лота: 134542797

Воронежская область, Воронеж г., Коминтерновский, 45 стрелковой дивизии ул., д.232/1

Студия 28 м2 в ЖК undefined корпус null этаж 8

1/23

  • Студия

    Комнаты

  • 28 м²

    Общая

  • 18,8 м²

    Жилая

  • 8

    Этаж

  • 2022

    Год постройки

  • Прямая продажа

Студия "под ключ" в доме 2022 г.

Представляем к продаже современную квартиру-студию в новом доме, сданном в 2022 году. Это уникальное предложение для тех, кто ценит время и ищет готовое решение: квартира идеально подходит как для немедленного заселения, так и для высокодоходной сдачи в аренду. В квартире уже есть всё необходимое:металлическая входная дверь; кондиционер для вашего комфорта; полностью укомплектованный кухонный гарнитур со встроенной техникой; холодильник; диван; шторы; стиральная машина; вместительный шкаф в прихожей. Вам останется только занести личные вещи! Инфраструктура дома: в доме есть подземный паркинг, а на первом этаже расположен магазин "Магнит".. Инфраструктура для жизни: детские сады - 3-10 минут пешком, УВК Гимназия 1 - 10 минут пешком, спортивные и фитнес-центры, рынок (всегда вкусные и свежие продукты), аптеки, заведения быстрого питания, кофейни, стоматологии и салоны красоты. Транспорт: До остановки общественного транспорта "Геологоразведка" - 3 минуты пешком, много маршрутов, можно добраться в любую точку города. Заинтересовались? Позвоните нам прямо сейчас, чтобы узнать больше и договориться о просмотре!

Подробнее о квартире

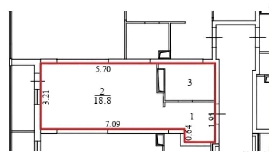
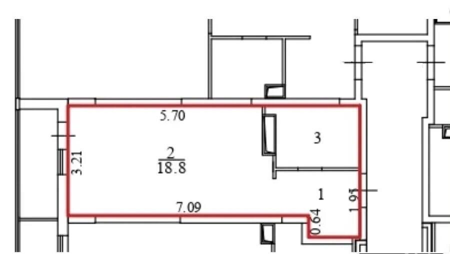
  • Общая площадь 28 м²
  • Жилая площадь 18,8 м²
  • Площадь комнаты №1 18,8 м²
  • Этаж 8
  • Ремонт Косметический
  • Санузел совмещенный 1

Пакеты услуг для этой квартиры

Мы подобрали всё необходимое, чтобы вы могли не только оформить сделку, но и подготовить квартиру к своему переезду или сдаче в аренду

Подробнее о доме

  • Год постройки 2022
  • Тип дома Монолитно - кирпичный
  • Тип территории Открытая
  • Количество этажей 17
  • Отопление Центральное

Размещено 2 недели назад

Расположение и инфраструктура

Купите в ипотеку

Поиск исполнителей

Выберите услугу, чтобы увидеть
список надёжных компаний

  • Оценка

    Оценка квартир, домов и земельных участков, коммерческих помещений

Похожие квартиры