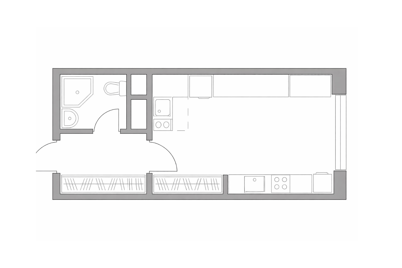
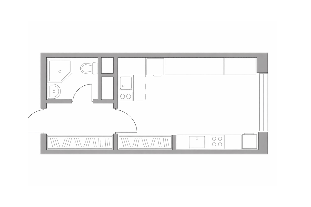
Студия, 26,7 м²

Номер лота: 134607187

Москва, Южнопортовый район, Новоостаповская ул., д.16, к.1

Студия 26.7 м2 в ЖК undefined корпус null этаж 27

1/10

  • Студия

    Комнаты

  • 26,7 м²

    Общая

  • 14,6 м²

    Жилая

  • 4,3 м²

    Кухня

  • 27

    Этаж

  • 2025

    Год постройки

  • Прямая продажа

Квартира в бетоне рядом с метро

Студия 26,7 м², 27 этаж, Дубровка от Гранель - 5 мин пешком до метро Студия без отделки - база ваш ремонт: не платите за чужой дизайн и не тратите время на демонтаж. Легко делится на рабочую и спальную зоны. Идеальная локация для арендаторов: Метро Дубровка - 5 минут пешком (пешая доступность = стабильный спрос). Комплекс расположен в динамично развивающемся ЮВАО, где квартиры стабильно востребованы в аренду. Спрос на аренду: В этой локации студии регулярно сдаются в аренду, и средние предложения в ближайших ЖК находятся от ~75–90 тыс. ₽ в месяц для примерно 30 м². Транспорт: Метро Дубровка, МЦК - в пешей доступности, быстрый выезд в центр Москвы. Документы: Свободная продажа. Ипотека возможна. Звоните, отвечу на все вопросы.

Подробнее о квартире

  • Общая площадь 26,7 м²
  • Жилая площадь 14,6 м²
  • Площадь кухни 4,3 м²
  • Площадь комнаты №1 14,6 м²
  • Этаж 27
  • Ремонт Требует ремонта
  • Санузел совмещенный 1

Пакеты услуг для этой квартиры

Мы подобрали всё необходимое, чтобы вы могли не только оформить сделку, но и подготовить квартиру к своему переезду или сдаче в аренду

Подробнее о доме

  • Год постройки 2025
  • Тип дома Монолитно - кирпичный
  • Мусоропровод Да
  • Тип территории Открытая
  • Количество этажей 30
  • Отопление Центральное

Размещено 2 дня назад

Расположение и инфраструктура

Купите в ипотеку

Поиск исполнителей

Выберите услугу, чтобы увидеть
список надёжных компаний

  • Оценка

    Оценка квартир, домов и земельных участков, коммерческих помещений

Похожие квартиры