Студия, 23,4 м²

Номер лота: 134952065

Москва, Филимонковское район, Золотошвейная ул., д.9

Студия 23.4 м2 в ЖК undefined корпус null этаж 7

1/4

  • Студия

    Комнаты

  • 23,4 м²

    Общая

  • 12 м²

    Жилая

  • 4 м²

    Кухня

  • 7

    Этаж

  • 2020

    Год постройки

  • Прямая продажа

Студия 23.4 м²

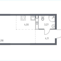
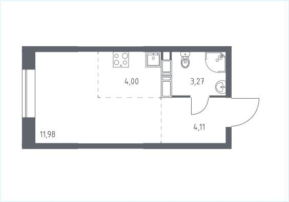
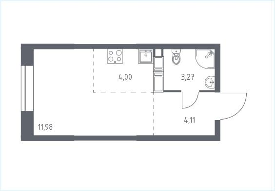
Продается Студия в ЖК «Цветочные Поляны» Студия расположена на 7 этаже 13-этажного жилого дома. Дом сдан!!! Уютная светлая квартира с отличным видом из окна. Комната 12.0 м2, кухня -ниша 4.0 м2 , прихожая 4.1 м2, санузел совмещенный 3.27 м2 . Важные преимущества ЖК: - коммерческая инфраструктура на первых этажах; - приватные дворы с прогулочными дорожками и зонами отдыха; - дизайнерские входные группы; - помещения для колясок и велосипедов; - охрана и видеонаблюдение. -Парковка гостевая Отличная транспортная доступность: м. Филатов Луг - 12 минут на машине. м. Летово -13 минут на машине!!! Есть места, которые притягивают своей атмосферой уюта и спокойствия, где с первого мгновения появляется ощущение дома. Таким местом станет квартал «Цветочные Поляны» с квартирами в Новой Москве. Жилой комплекс «Цветочные Поляны» расположен недалеко от двух станций метро. До «Филатова Луга» — 10 минут на машине, а до «Саларьево» — 15 минут. Но на территории квартала есть и автобусная остановка, чтобы добираться до нужной точки было еще проще. Отличная возможность приобрести квартиру в перспективном Жилом комплексе,где цена будет только расти.Не упустите ее. Звоните, отвечу на все ваши вопросы . 1 взрослый собственник,быстрый выход на сделку. Для наших покупателей: * помощь в получении ипотеки в ведущих банках, с высокой степенью одобрения * специальные скидки по ставкам 0.3-1% * одобрение ипотеки по субсидированным ставкам от 12.25%, консультация бесплатно * юридическое сопровождение сделки

Подробнее о квартире

  • Общая площадь 23,4 м²
  • Жилая площадь 12 м²
  • Площадь кухни 4 м²
  • Площадь прихожей 4,1 м²
  • Площадь комнаты №1 12 м²
  • Этаж 7
  • Ремонт Требует ремонта
  • Санузел совмещенный 1

Пакеты услуг для этой квартиры

Мы подобрали всё необходимое, чтобы вы могли не только оформить сделку, но и подготовить квартиру к своему переезду или сдаче в аренду

Подробнее о доме

  • Год постройки 2020
  • Тип территории Открытая
  • Количество этажей 13
  • Отопление Центральное

Размещено 1 день назад

Расположение и инфраструктура

Купите в ипотеку

Поиск исполнителей

Выберите услугу, чтобы увидеть
список надёжных компаний

  • Оценка

    Оценка квартир, домов и земельных участков, коммерческих помещений

Похожие квартиры