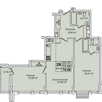
3-к. квартира, 76 м²

Номер лота: 69dfc7062c86bd339313764c

Россия, Нижний Новгород, улица Красных Зорь, 23Д

3-комнатная 76 м2 в ЖК Авиатор корпус null этаж 5

1/2

  • 3

    Комнаты

  • 76 м²

    Общая

  • 57 м²

    Жилая

  • 23 м²

    Кухня

  • 5 из 16

    Этаж

  • 2026

    Год постройки

  • Прямая продажа

Подробнее о квартире

  • Количество комнат 3
  • Общая площадь 76 м²
  • Жилая площадь 57 м²
  • Площадь кухни 23 м²
  • Этаж 5 из 16
  • Высота потолков 2 м
  • Отделка Без отделки

Подробнее о доме

  • Год постройки 2026
  • Этап строительства Недостроенный
  • Тип дома Кирпичный
  • Лифт пассажирский 2
  • Лифт грузовой 2
  • Количество этажей 16

Размещено 1 неделю назад

Расположение и инфраструктура

Купите в ипотеку

Поиск исполнителей

Выберите услугу, чтобы увидеть
список надёжных компаний

  • Оценка

    Оценка квартир, домов и земельных участков, коммерческих помещений

Похожие квартиры