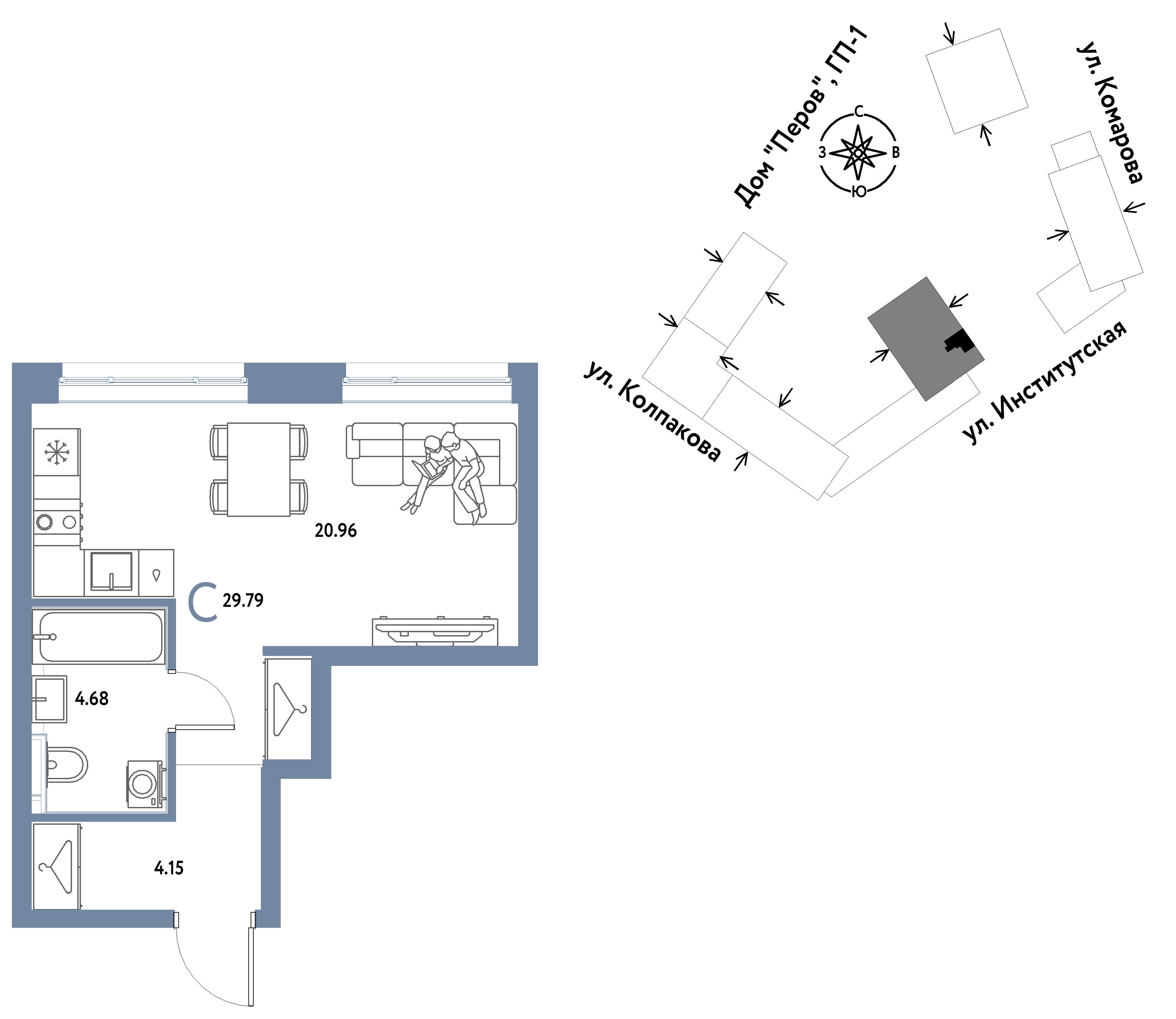
Студия, 29 м²

Номер лота: 69e080f63c93a9702ad424f3

Россия, Московская область, Мытищи, 1-й проезд Матросова, 11

Студия 29 м2 в ЖК Страна.Парковая корпус null этаж 18

1/1

  • Студия

    Комнаты

  • 29 м²

    Общая

  • 15 м²

    Жилая

  • 5 м²

    Кухня

  • 18 из 25

    Этаж

  • 2027

    Год постройки

  • Прямая продажа

Подробнее о квартире

  • Общая площадь 29 м²
  • Жилая площадь 15 м²
  • Площадь кухни 5 м²
  • Этаж 18 из 25
  • Высота потолков 2 м
  • Отделка Под чистовую

Подробнее о доме

  • Год постройки 2027
  • Этап строительства Недостроенный
  • Тип дома Блочный
  • Серия дома individual-nyi-proekt
  • Лифт пассажирский 8
  • Лифт грузовой 11
  • Количество этажей 25

Размещено 1 неделю назад

Расположение и инфраструктура

Купите в ипотеку

Поиск исполнителей

Выберите услугу, чтобы увидеть
список надёжных компаний

  • Оценка

    Оценка квартир, домов и земельных участков, коммерческих помещений

Похожие квартиры