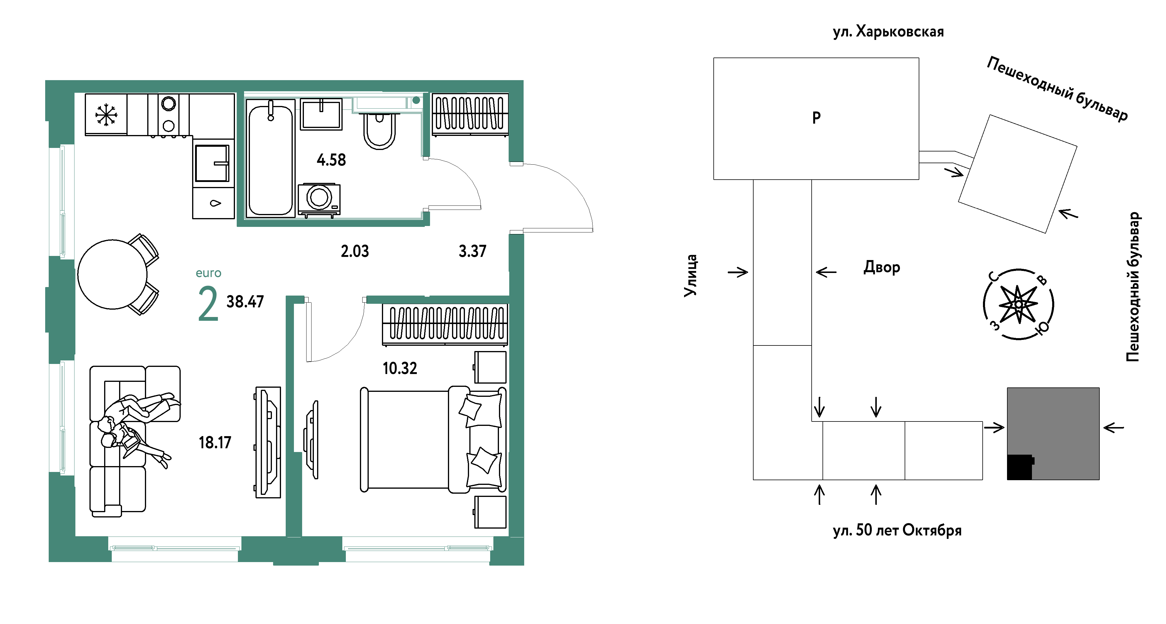
2-к. квартира, 38 м²

Номер лота: 69ddfe7176c65af899734788

Россия, Тюмень, улица 50 лет Октября, 61

2-комнатная 38 м2 в ЖК Сердце Сибири корпус null этаж 23

1/1

  • 2

    Комнаты

  • 38 м²

    Общая

  • 22 м²

    Жилая

  • 5 м²

    Кухня

  • 23 из 25

    Этаж

  • 2027

    Год постройки

  • Прямая продажа

Подробнее о квартире

  • Количество комнат 2
  • Общая площадь 38 м²
  • Жилая площадь 22 м²
  • Площадь кухни 5 м²
  • Этаж 23 из 25
  • Высота потолков 2 м
  • Отделка Под чистовую

Подробнее о доме

  • Год постройки 2027
  • Этап строительства Недостроенный
  • Тип дома Кирпичный
  • Лифт пассажирский 5
  • Лифт грузовой 8
  • Количество этажей 25

Размещено 3 дня назад

Расположение и инфраструктура

Купите в ипотеку

Поиск исполнителей

Выберите услугу, чтобы увидеть
список надёжных компаний

  • Оценка

    Оценка квартир, домов и земельных участков, коммерческих помещений

Похожие квартиры