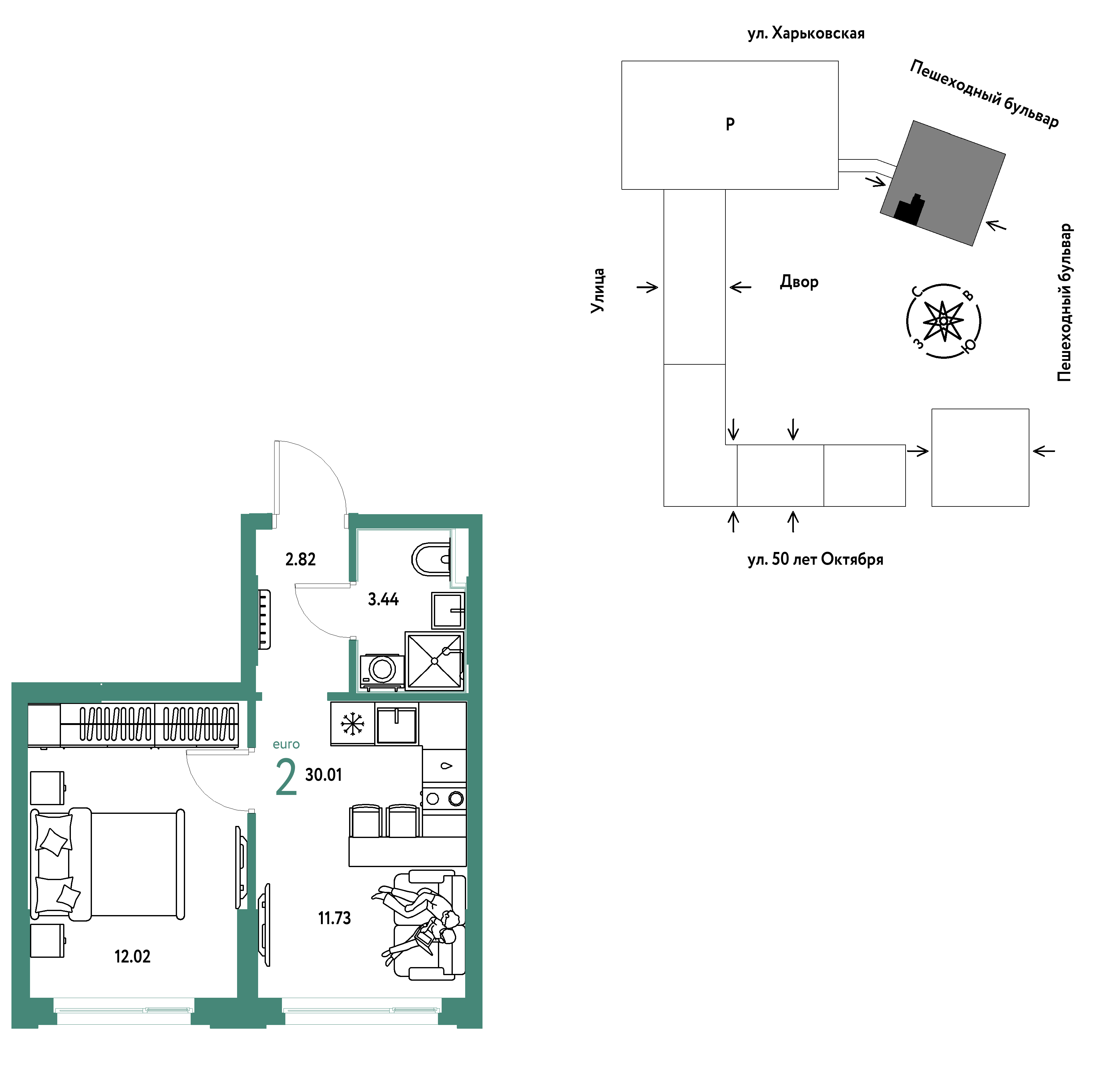
2-к. квартира, 30 м²

Номер лота: 69df83e076c65af899764d93

Россия, Тюмень, улица 50 лет Октября, 61

2-комнатная 30 м2 в ЖК Сердце Сибири корпус null этаж 7

1/1

  • 2

    Комнаты

  • 30 м²

    Общая

  • 18 м²

    Жилая

  • 5 м²

    Кухня

  • 7 из 25

    Этаж

  • 2027

    Год постройки

  • Прямая продажа

Подробнее о квартире

  • Количество комнат 2
  • Общая площадь 30 м²
  • Жилая площадь 18 м²
  • Площадь кухни 5 м²
  • Этаж 7 из 25
  • Высота потолков 2 м
  • Отделка Под чистовую

Подробнее о доме

  • Год постройки 2027
  • Этап строительства Недостроенный
  • Тип дома Кирпичный
  • Лифт пассажирский 5
  • Лифт грузовой 8
  • Количество этажей 25

Размещено 2 дня назад

Расположение и инфраструктура

Купите в ипотеку

Поиск исполнителей

Выберите услугу, чтобы увидеть
список надёжных компаний

  • Оценка

    Оценка квартир, домов и земельных участков, коммерческих помещений

Похожие квартиры