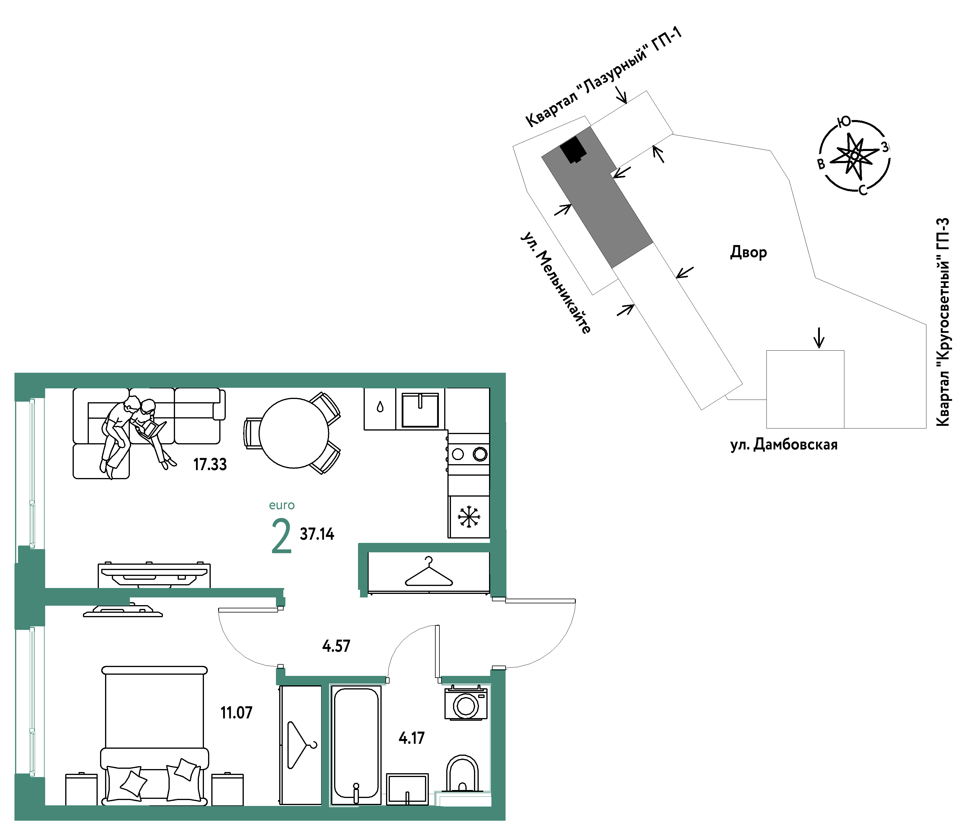
2-к. квартира, 37 м²

Номер лота: 69dace3b3c93a9702ac5a14e

Россия, Тюмень, Дамбовская улица, 2/2

2-комнатная 37 м2 в ЖК Страна.Прибрежная корпус null этаж 3

1/1

  • 2

    Комнаты

  • 37 м²

    Общая

  • 22 м²

    Жилая

  • 5 м²

    Кухня

  • 3 из 16

    Этаж

  • 2027

    Год постройки

  • Прямая продажа

Подробнее о квартире

  • Количество комнат 2
  • Общая площадь 37 м²
  • Жилая площадь 22 м²
  • Площадь кухни 5 м²
  • Этаж 3 из 16
  • Высота потолков 2 м
  • Отделка Под чистовую

Подробнее о доме

  • Год постройки 2027
  • Этап строительства Недостроенный
  • Тип дома Монолитный
  • Лифт пассажирский 4
  • Лифт грузовой 5
  • Количество этажей 16
  • Тип парковки Подземная

Размещено 6 дней назад

Расположение и инфраструктура

Купите в ипотеку

Поиск исполнителей

Выберите услугу, чтобы увидеть
список надёжных компаний

  • Оценка

    Оценка квартир, домов и земельных участков, коммерческих помещений

Похожие квартиры