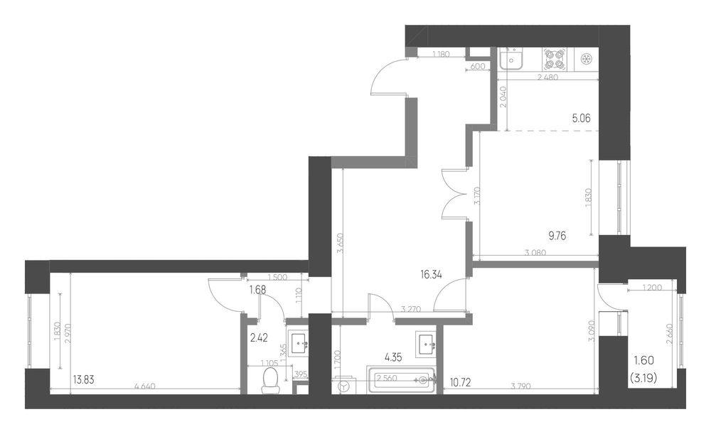
3-к. квартира, 65 м²

Номер лота: 6819d622ccd8996ff27f82eb

Россия, Республика Татарстан (Татарстан), Нижнекамск, улица Менделеева, 23

3-комнатная 65 м2 в ЖК Калина корпус null этаж 8

1/1

  • 3

    Комнаты

  • 65 м²

    Общая

  • 34 м²

    Жилая

  • 8 из 9

    Этаж

  • 2027

    Год постройки

  • Прямая продажа

Подробнее о квартире

  • Количество комнат 3
  • Общая площадь 65 м²
  • Жилая площадь 34 м²
  • Этаж 8 из 9
  • Высота потолков 2 м

Подробнее о доме

  • Год постройки 2027
  • Этап строительства Недостроенный
  • Тип дома Кирпичный
  • Серия дома individual-nyi-proekt
  • Лифт грузовой 5
  • Количество этажей 9

Размещено 06.05.2025

Расположение и инфраструктура

Купите в ипотеку

Поиск исполнителей

Выберите услугу, чтобы увидеть
список надёжных компаний

  • Оценка

    Оценка квартир, домов и земельных участков, коммерческих помещений

Похожие квартиры