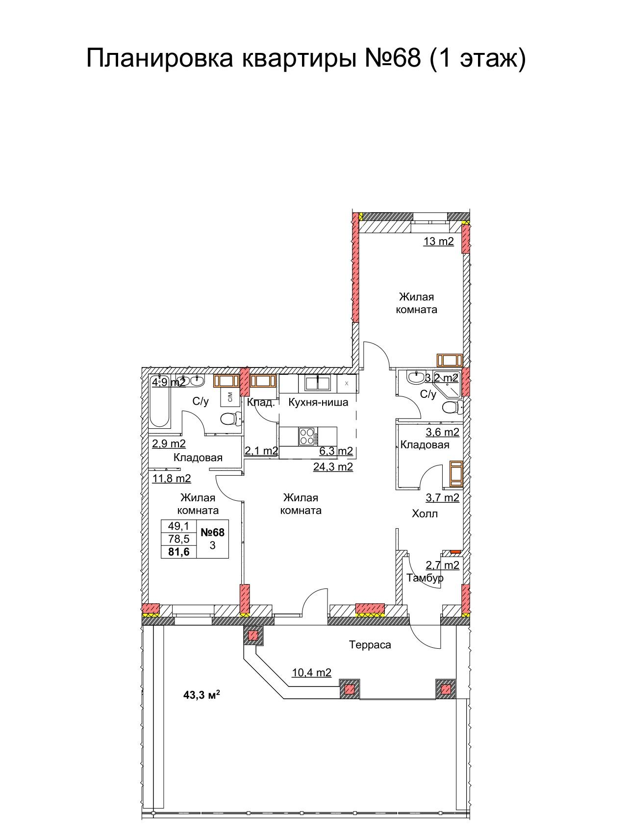
3-к. квартира, 83 м²

Номер лота: 68b6e3988f66fd9834201ecf

Россия, Московская область, городской округ Щёлково, посёлок Клюквенный, 18

3-комнатная 83 м2 в ЖК Клюквенный корпус null этаж 1

1/1

  • 3

    Комнаты

  • 83 м²

    Общая

  • 1 из 7

    Этаж

  • 2022

    Год постройки

  • Прямая продажа

Подробнее о квартире

  • Количество комнат 3
  • Общая площадь 83 м²
  • Этаж 1 из 7
  • Высота потолков 3 м

Подробнее о доме

  • Год постройки 2022
  • Этап строительства Сдан в эксплуатацию
  • Тип дома Монолитный
  • Серия дома individual-nyi-proekt
  • Лифт грузовой 4
  • Количество этажей 7

Размещено 02.09.2025

Расположение и инфраструктура

Купите в ипотеку

Поиск исполнителей

Выберите услугу, чтобы увидеть
список надёжных компаний

  • Оценка

    Оценка квартир, домов и земельных участков, коммерческих помещений

Похожие квартиры