4-к. квартира, 61,4 м²

Номер лота: 97595829

Тамбовская область, Тамбов г., Мичуринская ул., д.157

4-комнатная 61.4 м2 в ЖК undefined корпус null этаж 5

1/19

  • 4

    Комнаты

  • 61,4 м²

    Общая

  • 50 м²

    Жилая

  • 6 м²

    Кухня

  • 5

    Этаж

  • 1974

    Год постройки

  • Прямая продажа
Продается 4-комнатная квартира! Предлагаем к продаже просторную 4-комнатную квартиру площадью 61,2 кв.м, расположенную в кирпичном доме на улице Мичуринской. Квартира находится вдали от основной дороги, что обеспечивает тишину и комфорт. Характеристики квартиры: • Капитальный ремонт крыши был проведен в 2024 году • Удобная планировка • Светлые и просторные комнаты Инфраструктура: Во дворе имеется детская площадка, что делает квартиру идеальным вариантом для семей с детьми. В шаговой доступности находятся магазины "Пятерочка" и "Магнит", а также детские сады "Ёлочка", "Катюша", "Гусельки", школа №13 и Лицей №14. Для активного отдыха рядом расположены бассейны "Надежда" и "Бодрость", Ласковский карьер, Парк Победы, скверы и спортивная площадка для занятий спортом. Не упустите возможность стать владельцем этой замечательной квартиры! Звоните для получения дополнительной информации и организации просмотра.

Подробнее о квартире

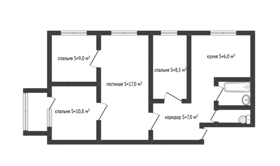
  • Количество комнат 4
  • Общая площадь 61,4 м²
  • Жилая площадь 50 м²
  • Площадь кухни 6 м²
  • Площадь комнаты №1 14 м²
  • Площадь комнаты №2 14 м²
  • Площадь комнаты №3 11 м²
  • Площадь комнаты №4 11 м²
  • Этаж 5
  • Тип планировки Смежно-изолированная
  • Ремонт Косметический
  • Санузел раздельный 1

Пакеты услуг для этой квартиры

Мы подобрали всё необходимое, чтобы вы могли не только оформить сделку, но и подготовить квартиру к своему переезду или сдаче в аренду

Подробнее о доме

  • Год постройки 1974
  • Тип дома Кирпичный
  • Тип территории Открытая
  • Количество этажей 5
  • Отопление Центральное

Размещено 11.03.2025

Расположение и инфраструктура

Купите в ипотеку

Поиск исполнителей

Выберите услугу, чтобы увидеть
список надёжных компаний

  • Оценка

    Оценка квартир, домов и земельных участков, коммерческих помещений

Похожие квартиры