4-к. квартира, 131 м²

Номер лота: 132933982

Московская область, Пушкинский район, Пушкино г., Тургенева ул., д.24

4-комнатная 131 м2 в ЖК undefined корпус null этаж 2

1/38

  • 4

    Комнаты

  • 131 м²

    Общая

  • 76 м²

    Жилая

  • 17,1 м²

    Кухня

  • 2

    Этаж

  • Прямая продажа
  • Онлайн-показ
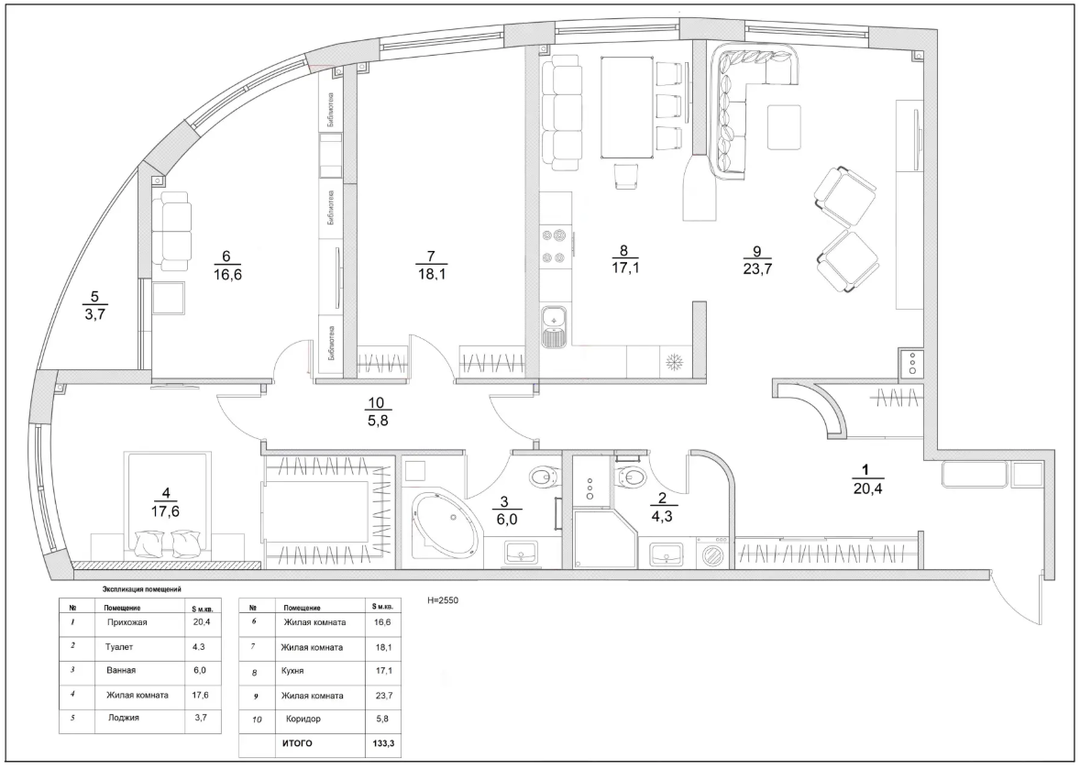
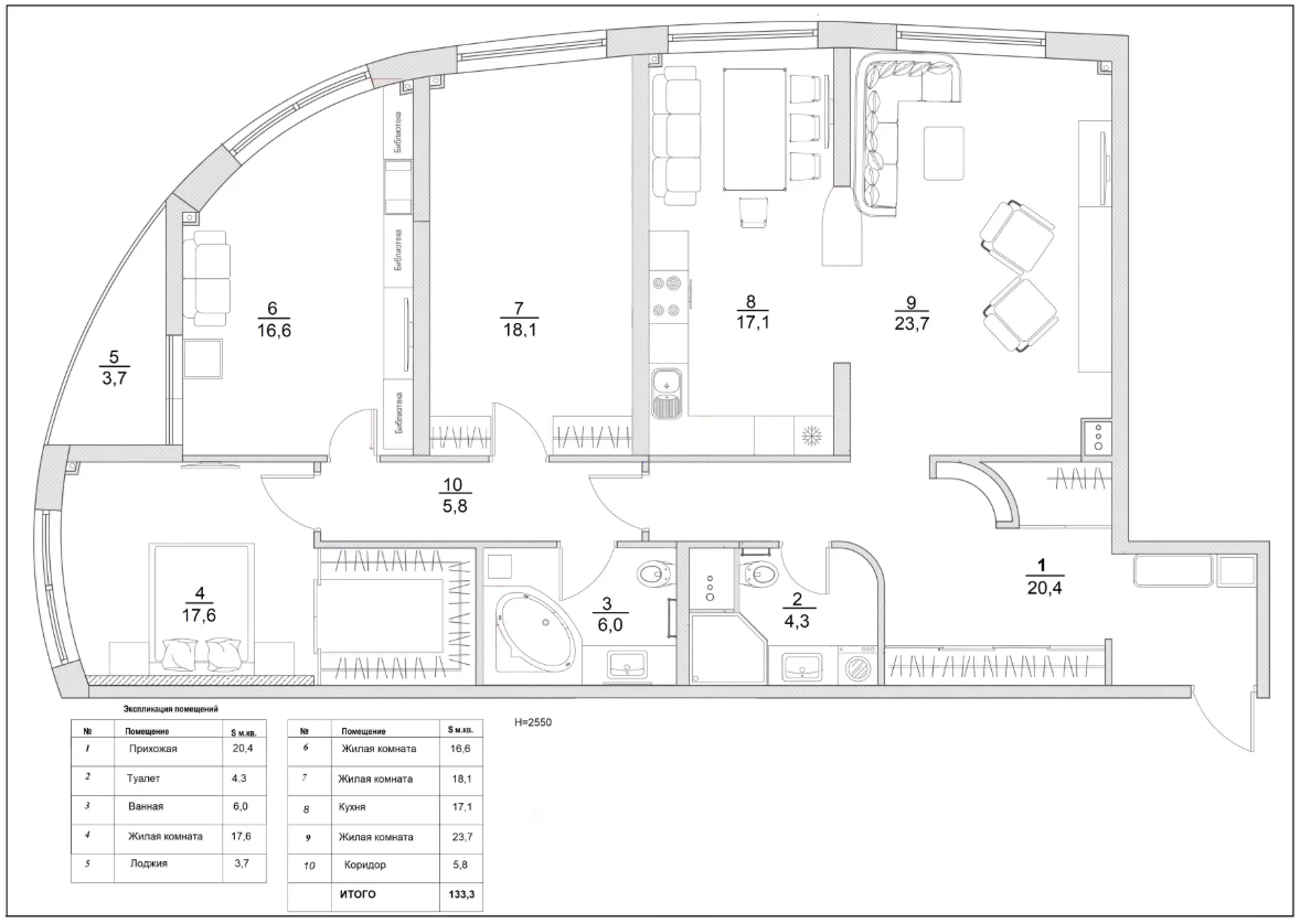
УНИКАЛЬНОЕ ПРЕДЛОЖЕНИЕ В ЦЕНТРЕ ГОРОДА! Продается 4-комнатная квартира в городе Пушкино, ул. Тургенева, дом 24 Квартиры в этом доме продаются крайне редко — не упустите шанс! Идеальный вариант для большой и дружной семьи ЛОКАЦИЯ Центр города — всё рядом, удобная транспортная доступность и развитая инфраструктура. Квартира расположена в ЖК «Парус», дом бизнес-класса О КВАРТИРЕ Просторная 4-комнатная квартира с продуманной планировкой: • Комнаты: 17,6 / 16,6 / 18,1 м² • Большая изолированная кухня-гостиная: 40,8 м² — сердце квартиры • Большие окна • Высокие потолки • Толстые стены (дополнительная шумоизоляция ДИЗАЙНЕРСКИЙ ремонт из премиальных материалов: • бамбуковый паркет повышенной прочности • керамогранит из натурального камня • натяжные потолки • мраморные подоконники • шумоизоляция Комфорт и технологии: • кондиционеры во всех комнатах • домофон с камерами (в квартирном и лифтовом холле) • качественные межкомнатные двери • входная дверь с усиленной шумоизоляцией Кухня-гостиная полностью укомплектована: • встроенная техника (варочная панель, духовой шкаф, посудомоечная машина, вытяжка) • уютный электрокамин — позволит Вам расслабиться и разгрузить голову после рабочего дня 2 санузла: • современная плитка • система фильтрации воды • термостатические смесители О ДОМЕ • Монолитный дом бизнес-класса • Собственная котельная (горячая вода круглый год) • ТСЖ — низкие коммунальные платежи • Консьерж и закрытая территория • Подземный паркинг • Детская и спортивная площадки ИНФРАСТРУКТУРА Всё необходимое — в шаговой доступности: • несколько детских садов и лучшая школа города • магазины, аптеки, банки • торговые центры и кинотеатр • салоны красоты • городская библиотека 5–10 минут пешком: • ж/д станция Пушкино • удобный выезд в Москву • до Ростокино — 18 минут • до Ярославского вокзала — 27 минут УСЛОВИЯ • Выгодная цена для центра города • Возможна ипотека от 11,9% • 1 взрослый собственник • Без обременений • Полная стоимость в договоре ЗВОНИТЕ ПРЯМО СЕЙЧАС! Оперативный показ и полное юридическое сопровождение сделки. Возможно, именно эта квартира станет вашим домом на долгие годы!

Подробнее о квартире

  • Количество комнат 4
  • Общая площадь 131 м²
  • Жилая площадь 76 м²
  • Площадь кухни 17,1 м²
  • Площадь прихожей 20,4 м²
  • Площадь комнаты №1 17,6 м²
  • Площадь комнаты №2 16,6 м²
  • Площадь комнаты №3 18,1 м²
  • Площадь комнаты №4 23,7 м²
  • Этаж 2
  • Тип планировки Изолированные
  • Ремонт Дизайнерский
  • Санузел совмещенный 2

Пакеты услуг для этой квартиры

Мы подобрали всё необходимое, чтобы вы могли не только оформить сделку, но и подготовить квартиру к своему переезду или сдаче в аренду

Подробнее о доме

  • Мусоропровод Да
  • Тип территории Открытая
  • Количество этажей 21
  • Отопление Центральное

Размещено 17.03.2026

Расположение и инфраструктура

Купите в ипотеку

Поиск исполнителей

Выберите услугу, чтобы увидеть
список надёжных компаний

  • Оценка

    Оценка квартир, домов и земельных участков, коммерческих помещений

Похожие квартиры