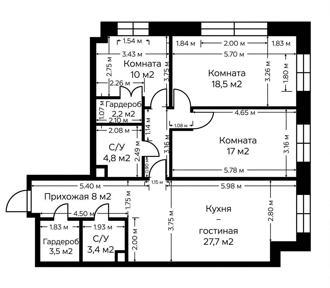
4-к. квартира, 100 м²

Номер лота: 134992111

Москва, Обручевский район, Архитектора Власова ул., д.71к2

4-комнатная 100 м2 в ЖК undefined корпус null этаж 7

1/28

  • 4

    Комнаты

  • 100 м²

    Общая

  • 45,5 м²

    Жилая

  • 27,7 м²

    Кухня

  • 7

    Этаж

  • 2023

    Год постройки

  • Прямая продажа
Продается 4е комнатная квартира в ЖК Бизнес-класса "Эвер". О ДОКУМЕНТАХ: Один собственник. Никто не зарегистрирован. Свободная продажа. Полная стоимость в договоре. О КВАРТИРЕ: Квартира разделена на гостевую и тихую зоны. Окна выходят на две стороны. Кухня – гостиная. Два санузла. Три гардеробные. Отделка White Box. Обустроена стяжка пола, разведена электрика. Отштукатурены стены. Квартира находится в корпусе первой очереди, который был сдан в 2023 году, с отделкой. Вам не придется слушать шум строительных работ. О ЖК «Эвер»: Шесть корпусов бизнес - класса высотой 34 этажа образуют два закрытых двора, объединенных общим стилобатом, на котором расположены уютные пространства: ландшафтный парк, зоны для спорта и игр, дзен-сад и детские пространства. Вход в корпуса осуществляется по биометрии или электронному ключу. Далее вы попадаете в двухуровневое лобби с зонами отдыха и удобными колясочными. Трехуровневый паркинг. ТРАНСПОРТНАЯ ДОСТУПНОСТЬ: Метро Оранжевая ветка "Калужская" - 4 мин. Метро БКЛ «Воронцовская» - 4 мин Удобные выезды на Ленинский проспект и ул. Профсоюзная. ПРЕИМУЩЕСТВА ЛОКАЦИИ: В пешей доступности Воронцовский парк, рестораны, торговые и развлекательные центры, фитнесс-клубы. В локации находятся лучшие ВУЗы Москвы. По регистрации ваши дети автоматически попадают в сад и школу 1514, которая находится в топ5 московских школ. Локация вокруг продолжает развиваться, так как она включена в КРТ города Москвы. Будут обустроены близлежащие территории: построены парк с зонами отдыха, спорткомплекс, еще один корпус школы и детского сада. Все это даст ощутимый прирост стоимости этой квартиры. Звоните, записывайтесь на показ!

Подробнее о квартире

  • Количество комнат 4
  • Общая площадь 100 м²
  • Жилая площадь 45,5 м²
  • Площадь кухни 27,7 м²
  • Площадь прихожей 8,8 м²
  • Этаж 7
  • Высота потолков 3 м
  • Тип планировки Изолированные
  • Ремонт Косметический
  • Санузел совмещенный 2

Пакеты услуг для этой квартиры

Мы подобрали всё необходимое, чтобы вы могли не только оформить сделку, но и подготовить квартиру к своему переезду или сдаче в аренду

Подробнее о доме

  • Год постройки 2023
  • Тип территории Открытая
  • Количество этажей 34
  • Отопление Центральное

Размещено 4 часа назад

Расположение и инфраструктура

Купите в ипотеку

Поиск исполнителей

Выберите услугу, чтобы увидеть
список надёжных компаний

  • Оценка

    Оценка квартир, домов и земельных участков, коммерческих помещений

Похожие квартиры