3-к. квартира, 96,1 м²

Номер лота: 117918394

Удмуртская Республика, Ижевск г., Индустриальный, Ворошилова ул., д.125

3-комнатная 96.1 м2 в ЖК undefined корпус null этаж 7

1/26

  • 3

    Комнаты

  • 96,1 м²

    Общая

  • 60 м²

    Жилая

  • 15,2 м²

    Кухня

  • 7

    Этаж

  • Прямая продажа
  • Возможен торг
  • Онлайн-показ
Мечта большой семьи: просторная 3-комнатная квартира 96 м² с 3 лоджиями! Ищете квартиру, где каждому члену семьи будет комфортно? Тогда это предложение для вас! Представляем вашему вниманию просторную 3-комнатную квартиру площадью 96 м² в кирпичном доме с отличной шумоизоляцией. Здесь всё продумано для удобства большой семьи: * Три изолированные комнаты – личное пространство для каждого. * Огромная кухня 15,1 м² – место для кулинарных шедевров и уютных семейных ужинов. * Три лоджии! У каждой комнаты своя – наслаждайтесь свежим воздухом и прекрасным видом. * Кухонный гарнитур с техникой и холодильник остаются. Вам не придётся тратить время и деньги на обустройство кухни. Встроенный шкаф-купе в прихожей также входит в стоимость, остальная мебель обсуждается. * Хорошее жилое состояние – заезжайте и живите! Фотографии соответствуют действительности. Дом: * Два лифта: грузовой и пассажирский. * Широкие стены (почти метр!) обеспечивают дополнительную тепло- и шумоизоляцию. * Прекрасное расположение: рядом школы, детские сады, торговые центры и лесопарковая зона для прогулок недалеко от Столицы. Бонусы: * Прямая продажа без цепочек! * Без долгов, обременений и детских долей. Эта квартира идеально подойдёт для дружной семьи, ценящей простор и комфорт. Звоните прямо сейчас и записывайтесь на просмотр!

Подробнее о квартире

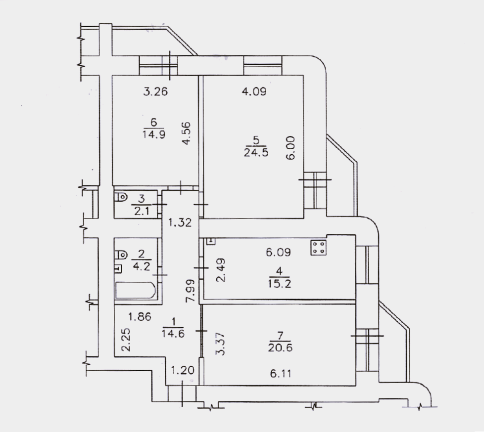
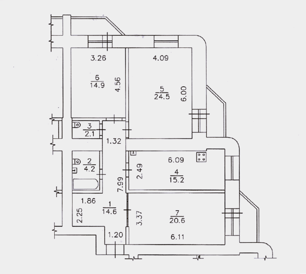
  • Количество комнат 3
  • Общая площадь 96,1 м²
  • Жилая площадь 60 м²
  • Площадь кухни 15,2 м²
  • Площадь прихожей 14,6 м²
  • Площадь комнаты №1 14,9 м²
  • Площадь комнаты №2 24,5 м²
  • Площадь комнаты №3 20,6 м²
  • Этаж 7
  • Тип планировки Изолированные
  • Санузел раздельный 1

Пакеты услуг для этой квартиры

Мы подобрали всё необходимое, чтобы вы могли не только оформить сделку, но и подготовить квартиру к своему переезду или сдаче в аренду

Подробнее о доме

  • Тип дома Кирпичный
  • Мусоропровод Да
  • Тип территории Открытая
  • Количество этажей 14
  • Отопление Центральное

Размещено 25.09.2025

Расположение и инфраструктура

Купите в ипотеку

Поиск исполнителей

Выберите услугу, чтобы увидеть
список надёжных компаний

  • Оценка

    Оценка квартир, домов и земельных участков, коммерческих помещений

Похожие квартиры