3-к. квартира, 77,3 м²

Номер лота: 71586167

Ханты-Мансийский АО, Сургут г., Центральный, Лермонтова ул., д.3

3-комнатная 77.3 м2 в ЖК undefined корпус null этаж 1

1/28

  • 3

    Комнаты

  • 77,3 м²

    Общая

  • 46 м²

    Жилая

  • 10,8 м²

    Кухня

  • 1

    Этаж

  • Прямая продажа
Продается светлая трехкомнатная квартира с просторной кухней-гостиной. Квартира расположена в обжитом уютном и тихом районе, в доме ленпроекта, Первый этаж идеален для семьи с детьми. В квартире выполнен ремонт с перепланировкой в современный формат 2+ с кухней-гостиной: зал объединен с кухней. Полы залиты, по всей квартире постелен ламинат. Окна и балкон пластиковые. Установлены современные радиаторы. Установлены качественные межкомнатные двери. Кухня с выходом на балкон. Установлен кухонный гарнитур со встроенной техникой. Бойлер, используется в летнее время при отключении горячей воды. 2 спальни. Предлагается оформить ремонт по своему вкусу. Санузел совместный (увеличен), облицован плиткой. В коридоре установлен шкаф-купе с зеркалами. В соседних дворах расположены д/сады Умка, крепыш, школы №27, №32, магазин Престиж, досуговый центр Камертон, оздоровительный комплекс Газовик, фитнес-центр "5 Звезд". В пешей доступности детская поликлиника №5, детская стоматология. Все необходимые организации и учреждения в шаговой доступности. Остановка общественного транспорта в минуте ходьбы. Квартира находится в обременении Сбербанка. Сделка нотариальная - детские доли. Продажа обусловлена переездом на постоянное место жительства в другой регион. Звоните, договоримся на показ в удобное для вас время.

Подробнее о квартире

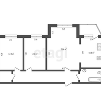
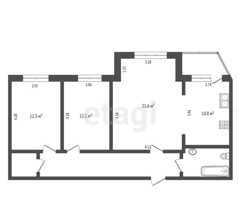
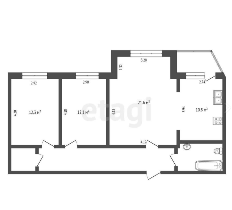
  • Количество комнат 3
  • Общая площадь 77,3 м²
  • Жилая площадь 46 м²
  • Площадь кухни 10,8 м²
  • Площадь комнаты №1 12,3 м²
  • Площадь комнаты №2 12,1 м²
  • Площадь комнаты №3 21,6 м²
  • Этаж 1
  • Тип планировки Изолированные
  • Ремонт Косметический
  • Санузел совмещенный 1

Пакеты услуг для этой квартиры

Мы подобрали всё необходимое, чтобы вы могли не только оформить сделку, но и подготовить квартиру к своему переезду или сдаче в аренду

Подробнее о доме

  • Тип дома Панельный
  • Тип территории Открытая
  • Количество этажей 5
  • Отопление Центральное

Размещено 12.08.2024

Расположение и инфраструктура

Купите в ипотеку

Поиск исполнителей

Выберите услугу, чтобы увидеть
список надёжных компаний

  • Оценка

    Оценка квартир, домов и земельных участков, коммерческих помещений

Похожие квартиры