3-к. квартира, 73 м²

Номер лота: 134954951

Москва, Раменки район, Генерала Дорохова пр-кт., д.39, к.1

3-комнатная 73 м2 в ЖК undefined корпус null этаж 3

1/12

  • 3

    Комнаты

  • 73 м²

    Общая

  • 41,8 м²

    Жилая

  • 6,2 м²

    Кухня

  • 3

    Этаж

  • Прямая продажа
Продажа по более привлекательной цене, чем у застройщика. Евро 3-х комнатная квартира 73 м² в клубном квартале премиум-класса West Garden! О квартире: • Квартира в процессе ремонта: проведено отопление, водоснабжение, канализация, установлена система кондиционирования. Стены, пол, откосы, проемы готовы под финишную отделку. В комплект входят готовые проекты: дизайн-проект, а также схемы водоснабжения и электрики. • Функциональная планировка евро-3: две изолированные спальни (одна мастер-спальня c coбcтвeнной гаpдерoбной и вaннoй кoмнaтой), большая кухня-гостиная. • Высота потолков 3,2 метра. О ЖК West Garden Это семейный среднеэтажный просторный квартал в одном из самых зеленых районов Москвы с собственным закрытым парком и прямым выходом к набережной реки Раменки. Здесь продумана каждая деталь: • парк с многолетними растениями разных периодов цветения, • прогулочные маршруты, беседки для пикника и пространства для тихого отдыха с беседками, качелями и навесами, • 8 детских площадок, • универсальная многофункциональная спортивная площадка для футбола, баскетбола, волейбола с трибуной для болельщиков, • зона воркаута, • теннисные столы, • зона для йоги с настилом и навесом, • беговая дорожка 3 километра, • просторные центральные лобби с высотой потолка 7,8 метра с зоной отдыха, стойкой ресепшен с деликатным консьерж-сервисом и просторными колясочными. • в окружении расположены современные семейные фитнес-клубы, профессиональные теннисные корты со всепогодным покрытием и старейший в России Московский городской гольф-клуб, • система кондиционирования VRV, • подземный и наземный паркинг, • свой выезд на проспект Генерала Дорохова. Условия сделки: • Продажа от единственного собственника. • Без обременений. • Все документы готовы к быстрой сделке.

Подробнее о квартире

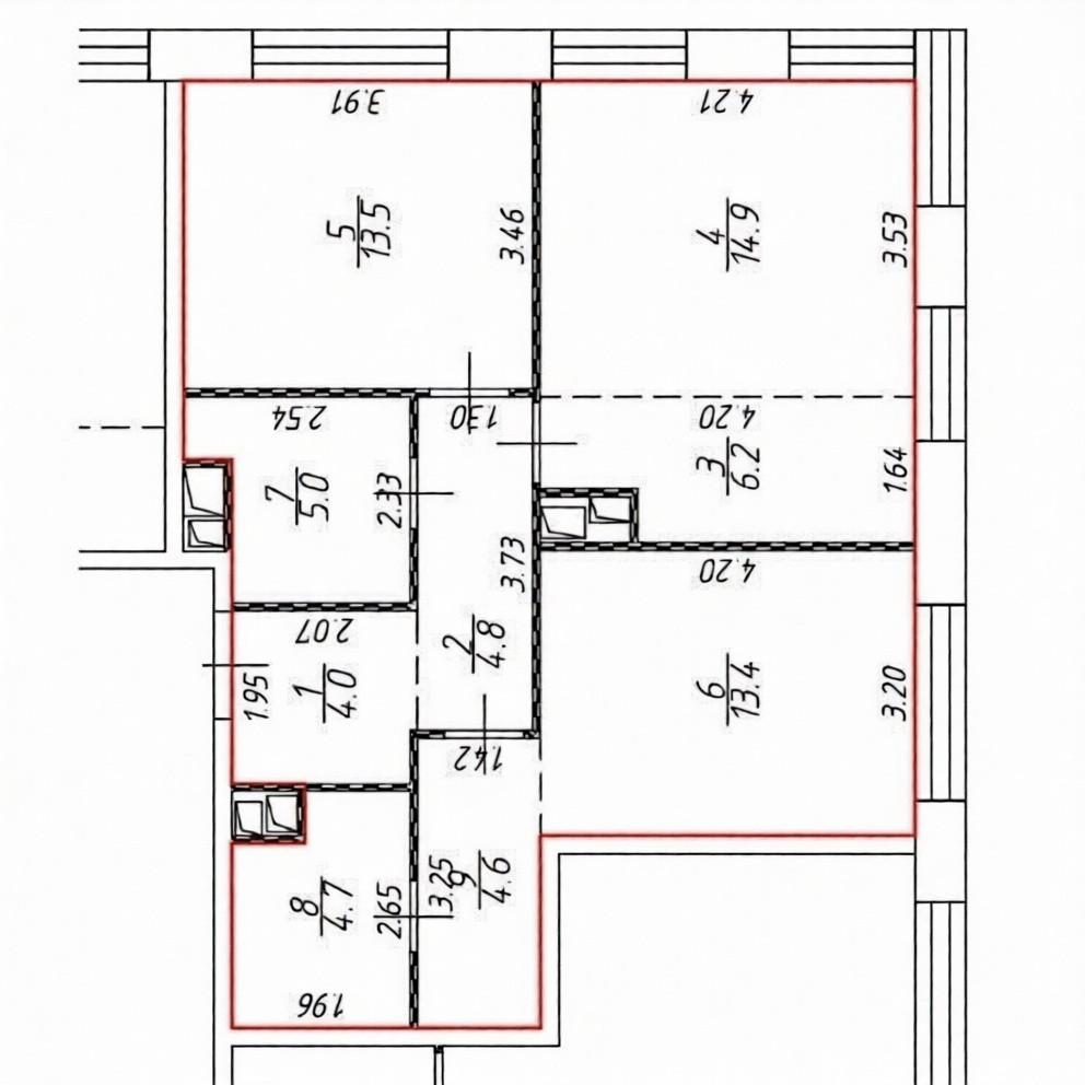
  • Количество комнат 3
  • Общая площадь 73 м²
  • Жилая площадь 41,8 м²
  • Площадь кухни 6,2 м²
  • Площадь комнаты №1 13,5 м²
  • Площадь комнаты №2 14,9 м²
  • Площадь комнаты №3 13,4 м²
  • Этаж 3
  • Высота потолков 3.2 м
  • Тип планировки Изолированные
  • Ремонт Требует ремонта
  • Санузел совмещенный 1

Пакеты услуг для этой квартиры

Мы подобрали всё необходимое, чтобы вы могли не только оформить сделку, но и подготовить квартиру к своему переезду или сдаче в аренду

Подробнее о доме

  • Тип территории Открытая
  • Количество этажей 14

Размещено 7 часов назад

Расположение и инфраструктура

Купите в ипотеку

Поиск исполнителей

Выберите услугу, чтобы увидеть
список надёжных компаний

  • Оценка

    Оценка квартир, домов и земельных участков, коммерческих помещений

Похожие квартиры