3-к. квартира, 72,4 м²

Номер лота: 117956031

Москва, Крюково район, Зеленоград г., Крюково, Александровка ул., д.1466

3-комнатная 72.4 м2 в ЖК undefined корпус null этаж 16

1/23

  • 3

    Комнаты

  • 72,4 м²

    Общая

  • 43,5 м²

    Жилая

  • 10,2 м²

    Кухня

  • 16

    Этаж

  • Прямая продажа
Только у нас данный объект вы можете приобрести в ипотеку по сниженной процентной ставке 12.75% при ПВ от 30%. Подробности уточняйте у агента. Продается уютная 3-комнатная квартира в Зеленограде, расположенная по адресу: к.1466. Квартира распашонка. Общая площадь квартиры составляет 72,4кв. м, жилая площадь — 43 кв. м (комнаты 17.9 кв. м, 14.3 кв. м, 11.3 кв. м), кухня — 10,1 кв. м. Квартира находится на 16 этаже 17-этажного дома, серия П-44. Дом оборудован двумя лифтами (грузовой и пассажирский). Квартира ухожена, что позволяет вам сразу въехать и обустроиться. Поскольку дом находится внутри микрорайона, Из окон открывается вид во дворы, поэтому в квартире всегда тихо и спокойно. В квартире раздельный санузел, балкон. Парковка во дворе бесплатная. Рядом с домом есть все необходимое для комфортной жизни: школы, детские сады, клиники и магазины. До метро Зеленоград — Крюково можно дойти пешком за 20 минут. Удобная транспортная доступность. Квартира продается без обременений, возможна покупка в ипотеку по сниженной процентной ставке 12.75%. Все документы готовы к сделке. Приглашаем вас на просмотр квартиры! Звоните и записывайтесь на удобное для вас время.

Подробнее о квартире

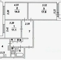
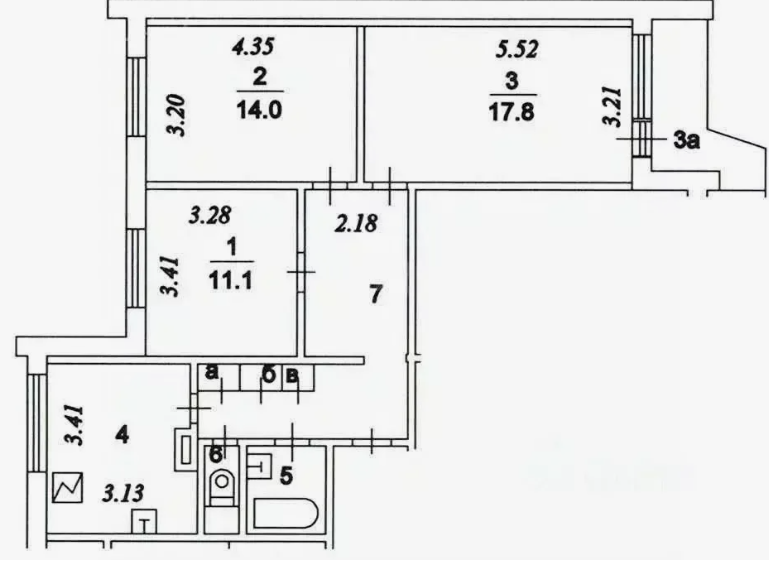
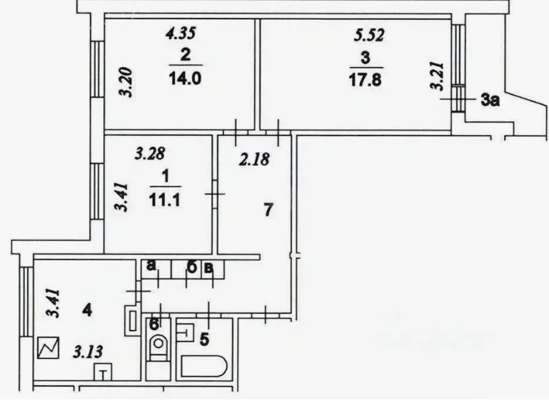
  • Количество комнат 3
  • Общая площадь 72,4 м²
  • Жилая площадь 43,5 м²
  • Площадь кухни 10,2 м²
  • Площадь комнаты №1 17,9 м²
  • Площадь комнаты №2 14,3 м²
  • Площадь комнаты №3 11,3 м²
  • Этаж 16
  • Тип планировки Изолированные
  • Ремонт Косметический
  • Санузел раздельный 1

Пакеты услуг для этой квартиры

Мы подобрали всё необходимое, чтобы вы могли не только оформить сделку, но и подготовить квартиру к своему переезду или сдаче в аренду

Подробнее о доме

  • Тип дома Панельный
  • Мусоропровод Да
  • Тип территории Открытая
  • Количество этажей 17
  • Отопление Центральное

Размещено 25.09.2025

Расположение и инфраструктура

Купите в ипотеку

Поиск исполнителей

Выберите услугу, чтобы увидеть
список надёжных компаний

  • Оценка

    Оценка квартир, домов и земельных участков, коммерческих помещений

  • Хоумстейджинг

    Улучшения внешнего вида и повышения рыночной стоимости квартиры

Похожие квартиры