3-к. квартира, 67,5 м²

Номер лота: 134994053

Москва, Хамовники район, Усачёва ул., д.29, к.7

1/11

  • 3

    Комнаты

  • 67,5 м²

    Общая

  • 44,4 м²

    Жилая

  • 9 м²

    Кухня

  • 3

    Этаж

  • 1928

    Год постройки

  • Прямая продажа
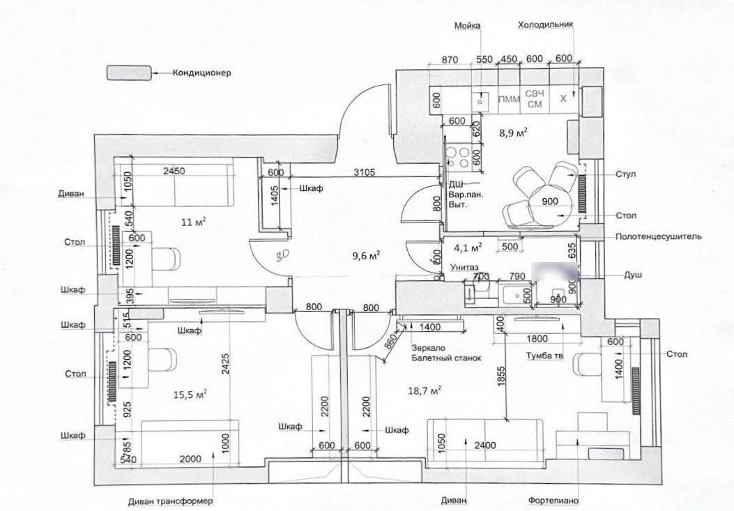
Продаётся 3-комнатная квартира с новым ремонтом в Хамовниках, ул. Усачёва Редкое предложение в одном из самых престижных районов Москвы - Хамовники. Пешая доступность до метро Спортивная, рядом Лужники, набережные, парки, школы, детские сады и вся инфраструктура центра города. О квартире (по экспликации) •Общая площадь: 67,6 м² •Три изолированные комнаты, правильной формы: •Комната 1 - 18,7 м² •Комната 2 - 15,5 м² •Комната 3 - 10,2 м² •Кухня - 8,9 м² •Прихожая - 10,2 м² •Ванная комната - 4,1 м² •Удобная, функциональная планировка •Раздельные комнаты, без проходных зон Состояние квартиры •Новый качественный ремонт •Полностью заменены все окна •Новые батареи отопления •Обновлены полы и стены •Квартира светлая, тёплая, готова к заезду без вложений Дом и территория •Дом после капитального ремонта •Железобетонные перекрытия •Газ + электричество •Ухоженный подъезд •Огороженная территория •Парковка для автомобилей во дворе •Тихий зелёный двор, спокойные соседи Локация Хамовники - район с высоким статусом и стабильным спросом. Отлично подходит как для комфортного проживания, так и для инвестиций и аренды.

Подробнее о квартире

  • Количество комнат 3
  • Общая площадь 67,5 м²
  • Жилая площадь 44,4 м²
  • Площадь кухни 9 м²
  • Площадь комнаты №1 18,7 м²
  • Площадь комнаты №2 15,5 м²
  • Площадь комнаты №3 10,2 м²
  • Этаж 3
  • Высота потолков 3 м
  • Тип планировки Изолированные
  • Санузел раздельный 1

Пакеты услуг для этой квартиры

Мы подобрали всё необходимое, чтобы вы могли не только оформить сделку, но и подготовить квартиру к своему переезду или сдаче в аренду

Подробнее о доме

  • Год постройки 1928
  • Тип дома Кирпичный
  • Тип территории Открытая
  • Количество этажей 5

Размещено 4 часа назад

Расположение и инфраструктура

Купите в ипотеку

Поиск исполнителей

Выберите услугу, чтобы увидеть
список надёжных компаний

  • Оценка

    Оценка квартир, домов и земельных участков, коммерческих помещений

Похожие квартиры