3-к. квартира, 67,5 м²

Номер лота: 134651368

Москва, Хамовники район, Усачёва ул., д.29, к.7

3-комнатная 67.5 м2 в ЖК undefined корпус null этаж 3

1/13

  • 3

    Комнаты

  • 67,5 м²

    Общая

  • 45,2 м²

    Жилая

  • 9 м²

    Кухня

  • 3

    Этаж

  • 1928

    Год постройки

  • Прямая продажа

Ставка по ипотеке от 11.9%

ВОЗМОЖНОСТЬ ПОЛУЧЕНИЯ ИПОТЕЧНОЙ СТАВКИ ОТ 11.9% Продается видовая трехкомнатная квартира на 3 этаже 5 этажного дома в премиальном районе Хамовники. Дом 1928 г. после капитального ремонта. В квартире выполнен дизайнерский ремонт в нейтральных тонах из высококачественных материалов. Пространство грамотно организовано, что создает ощущение уюта и комфорта. За счет высоких потолков в квартире много света. Мебель и техника остается новому собственнику, квартира полностью готова к проживанию. Инфраструктура: в пешей доступности находятся рестораны, кофейни, продуктовые магазины, аптеки, мед учреждения, школы, дет сад, Лужники, Усачевский рынок. Квартира расположена в очень зелёном районе. Уникальное сочетание городской инфраструктуры и природного окружения. Транспортная доступность: удобное расположение- до станции метро Спортивная 4 минут пешком, до станции метро Фрунзенская 18 мин на пешком. Быстрый выезд на Комсомольский проспект и ТТК. Документы: 1 взрослый собственник, полная в стоимость в договоре, юридическая чистота сделки гарантируется. Оперативный показ! Звоните, отвечу на все Ваши вопросы.

Подробнее о квартире

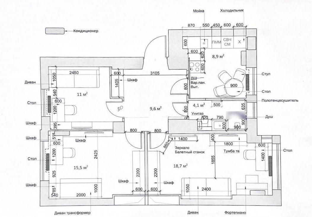
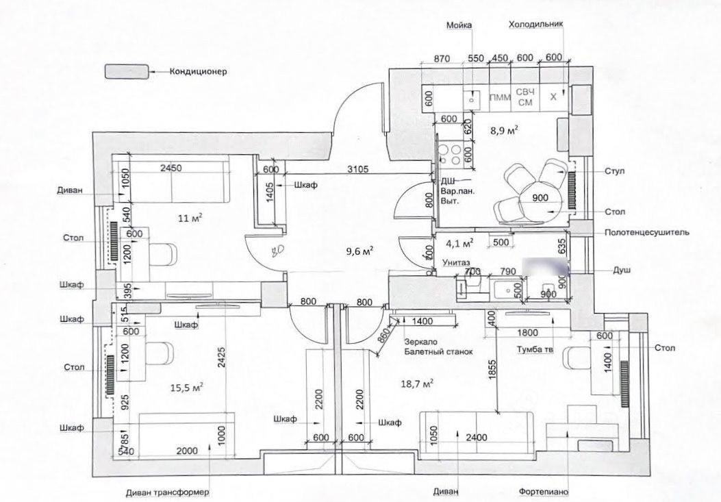
  • Количество комнат 3
  • Общая площадь 67,5 м²
  • Жилая площадь 45,2 м²
  • Площадь кухни 9 м²
  • Площадь комнаты №1 18,7 м²
  • Площадь комнаты №2 11 м²
  • Площадь комнаты №3 15,5 м²
  • Этаж 3
  • Тип планировки Изолированные
  • Санузел раздельный 1

Пакеты услуг для этой квартиры

Мы подобрали всё необходимое, чтобы вы могли не только оформить сделку, но и подготовить квартиру к своему переезду или сдаче в аренду

Подробнее о доме

  • Год постройки 1928
  • Тип дома Кирпичный
  • Тип территории Открытая
  • Количество этажей 5
  • Отопление Центральное

Размещено 5 часов назад

Расположение и инфраструктура

Купите в ипотеку

Поиск исполнителей

Выберите услугу, чтобы увидеть
список надёжных компаний

  • Оценка

    Оценка квартир, домов и земельных участков, коммерческих помещений

Похожие квартиры