3-к. квартира, 67,4 м²

Номер лота: 126718455

Хабаровский край, Комсомольск-на-Амуре г., Центральный, Комсомольская ул., д.84, к.2

3-комнатная 67.4 м2 в ЖК undefined корпус null этаж 10

1/37

  • 3

    Комнаты

  • 67,4 м²

    Общая

  • 43,9 м²

    Жилая

  • 7,8 м²

    Кухня

  • 10

    Этаж

  • 1997

    Год постройки

  • Прямая продажа
  • Возможен торг

Квартира в комсомольске-на-амуре

В продаже трёхкомнатная квартира, в доме улучшенной планировки расположенном в одном из лучших районах гор. Комсомольск-на-Амуре. Общая площадь 67,2м.кв: три изолированные комнаты; большая кухня; вместительная прихожая. В квартире выполнен качественный ремонт. Лоджия остеклена алюминиевым профилем. Из окон квартиры открывается красивейшие виды на восход солнца и неповторимые закаты. В шаговой доступности от дома находится всё, что необходимо для комфортной жизни: детские сады №15, 54, 126; школы № 14, 22, 27; детские развивающие центры; Политехнический университет; МФЦ, администрация города, отделения почты; магазины и ТЦ; остановки общественного транспорта. Документы готовы к сделке, один взрослый собственник, в собственности более пяти лет. Возможен любой вид расчёта. Покажем квартиру в удобное для Вас время. Рассматриваем предложения по торгу. Звоните сейчас!

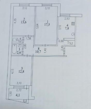
Подробнее о квартире

  • Количество комнат 3
  • Общая площадь 67,4 м²
  • Жилая площадь 43,9 м²
  • Площадь кухни 7,8 м²
  • Площадь прихожей 10,7 м²
  • Площадь комнаты №1 17,5 м²
  • Площадь комнаты №2 13,6 м²
  • Площадь комнаты №3 12,8 м²
  • Этаж 10
  • Высота потолков 2.53 м
  • Тип планировки Изолированные
  • Ремонт Косметический
  • Санузел раздельный 1

Пакеты услуг для этой квартиры

Мы подобрали всё необходимое, чтобы вы могли не только оформить сделку, но и подготовить квартиру к своему переезду или сдаче в аренду

Подробнее о доме

  • Год постройки 1997
  • Тип дома Панельный
  • Тип территории Открытая
  • Количество этажей 10
  • Отопление Центральное

Размещено 26.11.2025

Расположение и инфраструктура

Купите в ипотеку

Поиск исполнителей

Выберите услугу, чтобы увидеть
список надёжных компаний

  • Оценка

    Оценка квартир, домов и земельных участков, коммерческих помещений

Похожие квартиры