3-к. квартира, 65,6 м²

Номер лота: 132155413

Томская область, Томск г., Октябрьский, Пугачева Емельяна ул., д.1

3-комнатная 65.6 м2 в ЖК undefined корпус null этаж 7

1/23

  • 3

    Комнаты

  • 65,6 м²

    Общая

  • 41,6 м²

    Жилая

  • 8,7 м²

    Кухня

  • 7

    Этаж

  • 1997

    Год постройки

  • Прямая продажа
  • Возможен торг

Квартира с кладовкой

О доме: 9-этажный панельный дом 1997 года постройки, все коммуникации в хорошем состоянии. В подъезде новый лифт и косметический ремонт. О квартире: находится на высоком 7-м этаже. Общая площадь квартиры – 65,6 кв.м. Окна комнат выходят на разные стороны, окна деревянные, требуется косметический ремонт, ванна и санузел в кафеле раздельные. В квартире остается вся крупная мебель из натурального дерева, сделана под заказ. В подарок покупателю большая кладовая на этаже, с лоджией, в которой можно разместить все необходимое и даже мастерскую. В пешей близости остановки и магазины общего пользования. В пешей близости средняя школа №19, Детский сад комбинированного вида №95. Покупая квартиру в федеральной компании "Самолет плюс" вы получаете: - Ипотеку дешевле чем в банке - Безопасную сделку с профессиональными юристами - Быстрый выход на сделку Звоните и пишите, отвечу на все вопросы! (с 9.00 до 21.00)

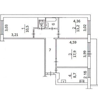
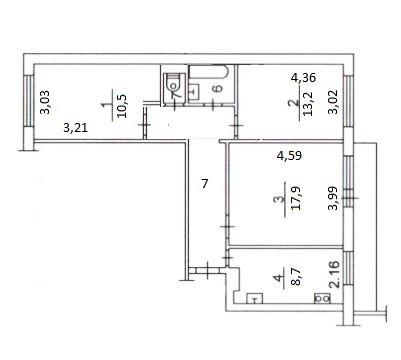
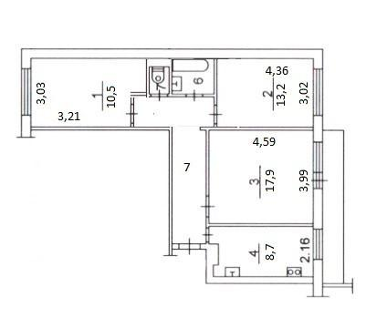
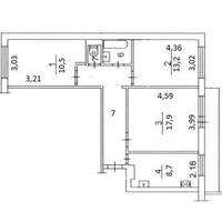
Подробнее о квартире

  • Количество комнат 3
  • Общая площадь 65,6 м²
  • Жилая площадь 41,6 м²
  • Площадь кухни 8,7 м²
  • Площадь прихожей 7 м²
  • Площадь комнаты №1 17,9 м²
  • Площадь комнаты №2 13,2 м²
  • Площадь комнаты №3 10,5 м²
  • Этаж 7
  • Высота потолков 2.6 м
  • Тип планировки Изолированные
  • Ремонт Требует ремонта
  • Санузел раздельный 1

Пакеты услуг для этой квартиры

Мы подобрали всё необходимое, чтобы вы могли не только оформить сделку, но и подготовить квартиру к своему переезду или сдаче в аренду

Подробнее о доме

  • Год постройки 1997
  • Тип дома Панельный
  • Тип территории Открытая
  • Количество этажей 9
  • Отопление Центральное

Размещено 28.02.2026

Расположение и инфраструктура

Купите в ипотеку

Поиск исполнителей

Выберите услугу, чтобы увидеть
список надёжных компаний

  • Оценка

    Оценка квартир, домов и земельных участков, коммерческих помещений

Похожие квартиры