3-к. квартира, 62,4 м²

Номер лота: 132374429

Новосибирская область, Бердск г., Ленина ул., д.85

3-комнатная 62.4 м2 в ЖК undefined корпус null этаж 4

1/23

  • 3

    Комнаты

  • 62,4 м²

    Общая

  • 45,4 м²

    Жилая

  • 4 м²

    Кухня

  • 4

    Этаж

  • 1970

    Год постройки

  • Прямая продажа
  • Возможен торг
  • Онлайн-показ

Евротрёшка в центре бердска!

Уважаемые покупатели, появился отличный вариант в самом центре Бердска! РЕДКОЕ ПРЕДЛОЖЕНИЕ на рынке недвижимости! Квартира в кирпичном доме, на комфортном 4-м этаже в самом-самом центре города! У нас Полностью капитальный ремонт всей квартиры. Поменяна вся проводка, трубы, выровнены стены и т.д Теплые полы, зонирование по свету, приточная вентиляция и многое другое! Остаётся полностью вся мебель и бытовая техника. Чистая продажа! Ремонт делали для себя: качественно и тщательно, продажа в связи с переездом в другой город. Всё для жизни в 5 минутах: Лицей №6, садик "Земляничка", парк отдыха , администрация города, сетевые магазины, ПВЗ, остановка "Радиозавод", электричка и т.д. Ключи в агентстве - показываем в удобное для вас время! При покупке данного варианта предусмотрена комиссия с покупателя. Выгодное предложение от САМОЛЕТ ПЛЮС - ипотека от 11.9%!

Подробнее о квартире

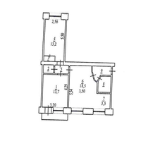
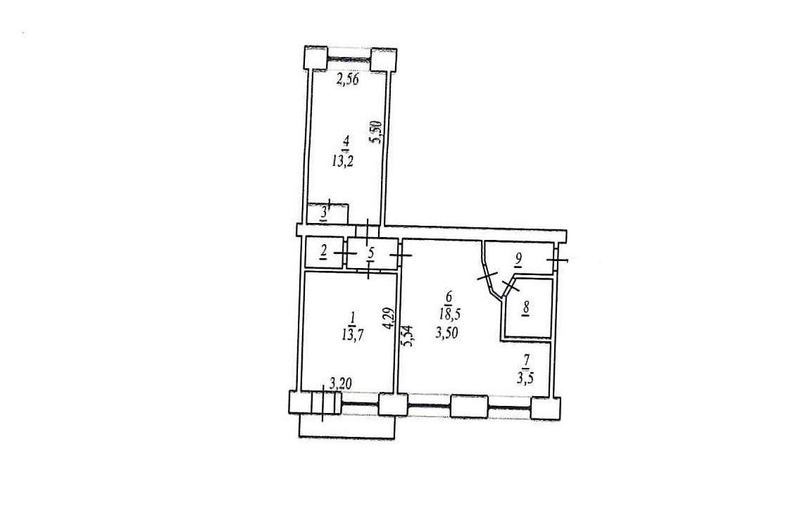
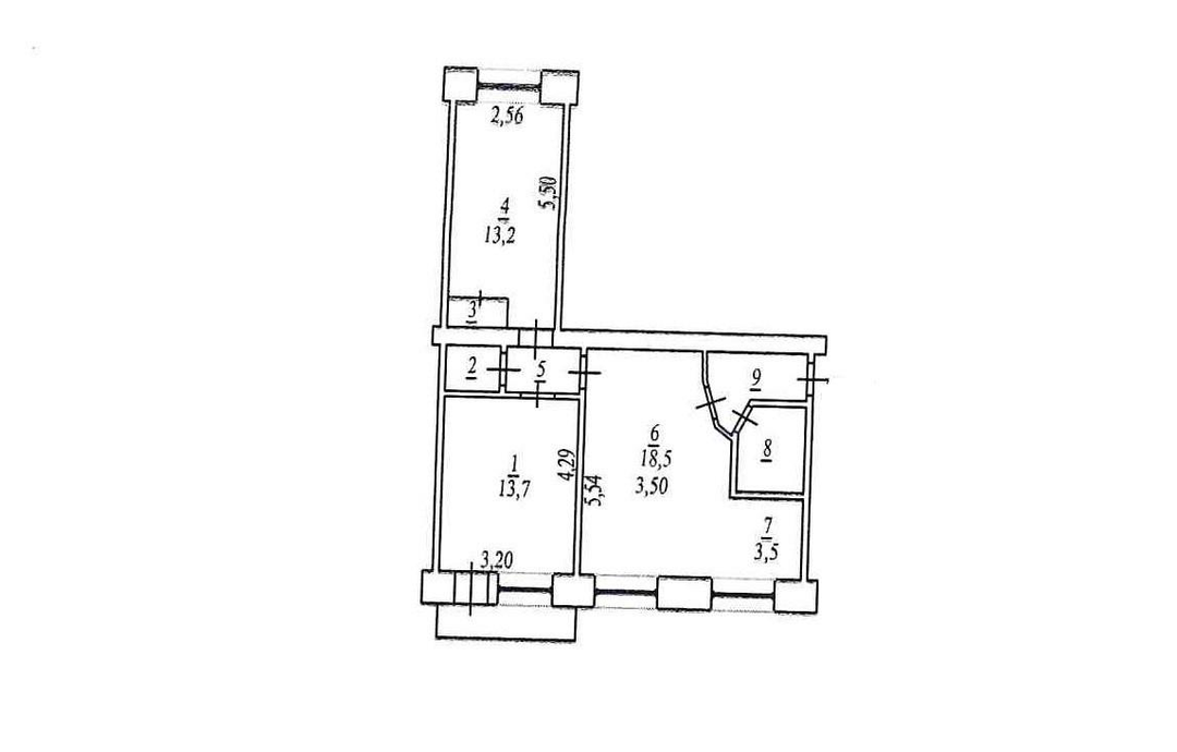
  • Количество комнат 3
  • Общая площадь 62,4 м²
  • Жилая площадь 45,4 м²
  • Площадь кухни 4 м²
  • Площадь прихожей 2,9 м²
  • Площадь комнаты №1 13,7 м²
  • Площадь комнаты №2 13,2 м²
  • Площадь комнаты №3 18,5 м²
  • Этаж 4
  • Тип планировки Смежно-изолированная
  • Санузел совмещенный 1

Пакеты услуг для этой квартиры

Мы подобрали всё необходимое, чтобы вы могли не только оформить сделку, но и подготовить квартиру к своему переезду или сдаче в аренду

Подробнее о доме

  • Год постройки 1970
  • Тип дома Кирпичный
  • Тип территории Открытая
  • Количество этажей 5
  • Отопление Центральное

Размещено 05.03.2026

Расположение и инфраструктура

Купите в ипотеку

Поиск исполнителей

Выберите услугу, чтобы увидеть
список надёжных компаний

  • Оценка

    Оценка квартир, домов и земельных участков, коммерческих помещений

Похожие квартиры