3-к. квартира, 60,8 м²

Номер лота: 94571464

Тюменская область, Тюмень г., Калининский, Червишевский тракт, д.82

3-комнатная 60.8 м2 в ЖК undefined корпус null этаж 1

1/17

  • 3

    Комнаты

  • 60,8 м²

    Общая

  • 45,2 м²

    Жилая

  • 9 м²

    Кухня

  • 1

    Этаж

  • 1973

    Год постройки

  • Прямая продажа
Срочная продажа трехкомнатной квартиры площадью 61 м² в панельном доме с косметическим ремонтом по привлекательной цене! Особенности квартиры:Свежий ремонт в двух комнатах.Стены оклеены новыми обоями.Частично установлены пластиковые окна.На полу уложен линолеум.Квартира полностью готова к заселению. Преимущества района:Развитая инфраструктура: 2 детских сада рядом, школа через дорогу.Множество магазинов, рынок — все в шаговой доступности.Зеленый и ухоженный район: клумбы, детские площадки и развлечения во дворе.Идеальный вариант для комфортного проживания! Не упустите возможность приобрести квартиру по выгодной цене. Свяжитесь для просмотра и уточнения деталей!

Подробнее о квартире

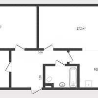
  • Количество комнат 3
  • Общая площадь 60,8 м²
  • Жилая площадь 45,2 м²
  • Площадь кухни 9 м²
  • Площадь комнаты №1 17,2 м²
  • Площадь комнаты №2 17,2 м²
  • Площадь комнаты №3 10,8 м²
  • Этаж 1
  • Тип планировки Изолированные
  • Ремонт Косметический
  • Санузел раздельный 1

Пакеты услуг для этой квартиры

Мы подобрали всё необходимое, чтобы вы могли не только оформить сделку, но и подготовить квартиру к своему переезду или сдаче в аренду

Подробнее о доме

  • Год постройки 1973
  • Тип дома Панельный
  • Тип территории Открытая
  • Количество этажей 5
  • Отопление Центральное

Размещено 10.02.2025

Расположение и инфраструктура

Купите в ипотеку

Поиск исполнителей

Выберите услугу, чтобы увидеть
список надёжных компаний

  • Оценка

    Оценка квартир, домов и земельных участков, коммерческих помещений

Похожие квартиры