3-к. квартира, 60,3 м²

Номер лота: 113190485

Саратовская область, Саратов г., Волжский, Весенняя ул., д.12А

3-комнатная 60.3 м2 в ЖК undefined корпус null этаж 2

1/22

  • 3

    Комнаты

  • 60,3 м²

    Общая

  • 35 м²

    Жилая

  • 7 м²

    Кухня

  • 2

    Этаж

  • Прямая продажа
Продаётся трехкомнатная квартира на Соколовой Горе! Квартира зимой очень тёплая! Комнаты изолированные, установлены новые радиаторы и трубы холодного и горячего водоснабжения. Тихие доброжелательные соседи. Благоустроенный тихий двор. Очень чистый подъезд. Хорошая управляющая компания. Достаточное количество парковочных мест во дворе дома Рядом детский сад, школа, налоговая инспекция, Техникум отраслевых технологий, сетевые магазины, аптеки, детская поликлиника, остановки общественного транспорта Легкое и выгодное приобретение:Юридическая чистота: Квартира без долгов и обременений.Удобная сделка: Любая форма расчетов, полная стоимость в договоре.Ипотека: Рассматриваем материнский капитал. Поможем оформить ипотеку в нашем офисе по выгодной ставке от 13,75% годовых! При продаже остается кухонный гарнитур и большой шкаф-купе в прихожей. Остальная мебель по договоренности. Ваш будущий дом ждет вас! Не упустите эту уникальную возможность, звоните прямо сейчас, пока квартиру не купил кто-то другой!

Подробнее о квартире

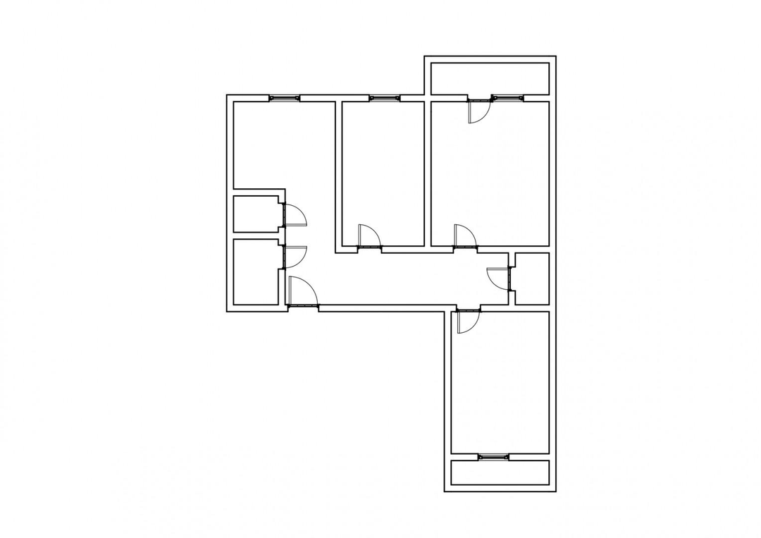
  • Количество комнат 3
  • Общая площадь 60,3 м²
  • Жилая площадь 35 м²
  • Площадь кухни 7 м²
  • Площадь комнаты №1 15 м²
  • Площадь комнаты №2 10 м²
  • Площадь комнаты №3 10 м²
  • Этаж 2
  • Тип планировки Изолированные
  • Ремонт Косметический
  • Санузел раздельный 1

Пакеты услуг для этой квартиры

Мы подобрали всё необходимое, чтобы вы могли не только оформить сделку, но и подготовить квартиру к своему переезду или сдаче в аренду

Подробнее о доме

  • Тип дома Панельный
  • Тип территории Открытая
  • Количество этажей 9
  • Отопление Центральное

Размещено 10.08.2025

Расположение и инфраструктура

Купите в ипотеку

Поиск исполнителей

Выберите услугу, чтобы увидеть
список надёжных компаний

  • Оценка

    Оценка квартир, домов и земельных участков, коммерческих помещений

Похожие квартиры