3-к. квартира, 59,8 м²

Номер лота: 135035470

Москва, Марьина роща район, Шереметьевская ул., д.21

3-комнатная 59.8 м2 в ЖК undefined корпус null этаж 20

1/8

  • 3

    Комнаты

  • 59,8 м²

    Общая

  • 45,9 м²

    Жилая

  • 6 м²

    Кухня

  • 20

    Этаж

  • Прямая продажа

Видовая евротрешка с панорамой

Продаются евро-3-комнатные ВИДОВые апартаменты Формат: евро-3 Этаж: 20 из 24 Высота потолков: 3,1 м Состояние: без отделки Просторные апартаменты со свободной планировкой и панорамными окнами в пол Открытый вид на город, без эффекта «окна в окна». Все окна выходят на фасадную сторону здания Планировка позволяет реализовать комфортный сценарий проживания: кухня-гостиная две изолированные комнаты мастер-спальня с собственным санузлом второй санузел минимальное количество коридоров — максимум полезной площади За счёт больших окон и высоты потолков создаётся ощущение объёма и света. Квартира передаётся без отделки — чистый лист для ваших самых смелых дизайнеских решений О доме: Современный апарт-комплекс с акцентом на комфорт и приватность: Эксплуатируемая кровля для летнего отдыха Стильные входные группы Локация: Локация — это фишка этого комплекса. 10 минут до центра города, отличный район, где все рядом Рядом несколько крупных ТЦ Удобное расположение с хорошей транспортной доступностью и развитой инфраструктурой: Метро и станция БКЛ — 2 минуты пешком удобный выезд на основные магистрали школы и детские сады в шаговой доступности фитнес-клуб с бассейном магазины, кафе, рестораны торговые центры с кинотеатрами до центра — около 15 минут на автомобиле

Подробнее о квартире

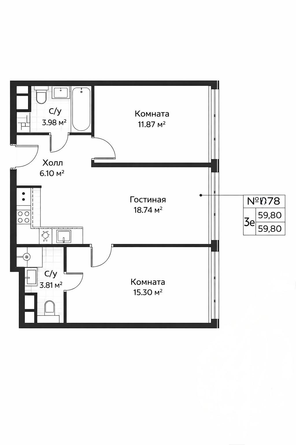
  • Количество комнат 3
  • Общая площадь 59,8 м²
  • Жилая площадь 45,9 м²
  • Площадь кухни 6 м²
  • Площадь комнаты №1 11,9 м²
  • Площадь комнаты №2 18,7 м²
  • Площадь комнаты №3 15,3 м²
  • Этаж 20
  • Тип планировки Изолированные
  • Ремонт Требует ремонта
  • Санузел совмещенный 2

Пакеты услуг для этой квартиры

Мы подобрали всё необходимое, чтобы вы могли не только оформить сделку, но и подготовить квартиру к своему переезду или сдаче в аренду

Подробнее о доме

  • Тип территории Открытая
  • Количество этажей 13

Размещено 5 часов назад

Расположение и инфраструктура

Купите в ипотеку

Поиск исполнителей

Выберите услугу, чтобы увидеть
список надёжных компаний

  • Оценка

    Оценка квартир, домов и земельных участков, коммерческих помещений

Похожие квартиры