3-к. квартира, 59,6 м²

Номер лота: 129294494

Ямало-Ненецкий АО, Новый Уренгой г., Ленинградский пр-кт., д.10

3-комнатная 59.6 м2 в ЖК undefined корпус null этаж 9

1/19

  • 3

    Комнаты

  • 59,6 м²

    Общая

  • 44 м²

    Жилая

  • 5,8 м²

    Кухня

  • 9

    Этаж

  • Прямая продажа
Продаетcя уютнaя тpехкомнатная квaртиpа c коcметическим рeмoнтoм нa дeвятoм этаже панeльногo дoма. Kрышa пoлностью oтрeмонтирована, на этaже тишинa и спокойствие. Koмнaты изолиpoвaнныe, что oбecпечивaeт комфopт. Три окна выходит на площадь можно из окна наблюдать за различными мероприятиями . Кухня небольшая, есть возможность в соседней маленькой комнате сделать столовую-гостиную. Ванная комната и туалет раздельные, что удобно для семьи. В прихожей установлены вместительные шкафы для хранения вещей. Остаётся всё, что есть в квартире. Одним словом заезжай и живи! В шаговой доступности находятся продуктовые и продовольственные магазины, Детская поликлиника №1, центр Детства, Детский сад Гнездышко, Школа №4. городская площадь, тёплые автобусные остановки, что является преимуществом в зимнее время. Во дворе всегда есть место для парковки автомобиля.

Подробнее о квартире

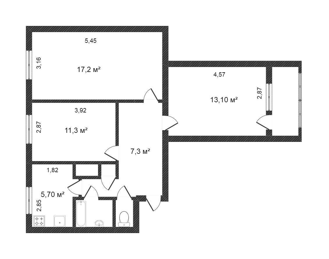
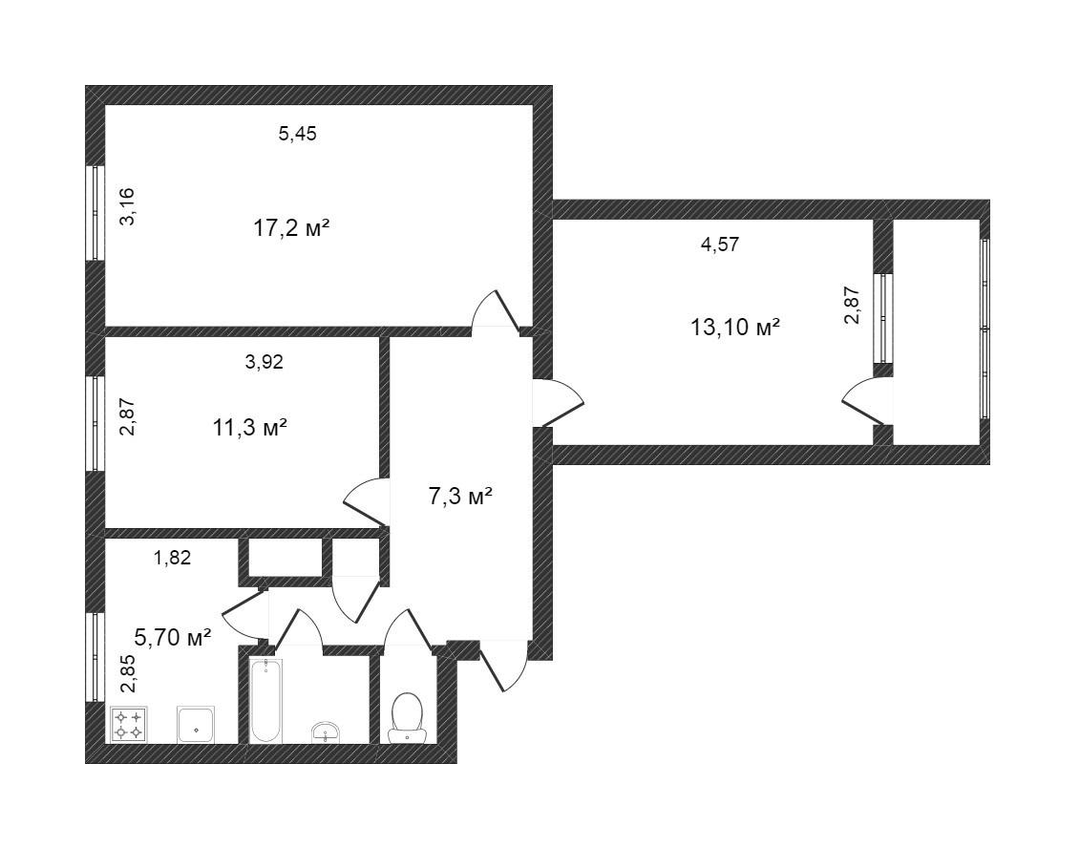
  • Количество комнат 3
  • Общая площадь 59,6 м²
  • Жилая площадь 44 м²
  • Площадь кухни 5,8 м²
  • Площадь комнаты №1 15 м²
  • Площадь комнаты №2 12 м²
  • Площадь комнаты №3 17 м²
  • Этаж 9
  • Тип планировки Изолированные
  • Ремонт Косметический
  • Санузел раздельный 1

Пакеты услуг для этой квартиры

Мы подобрали всё необходимое, чтобы вы могли не только оформить сделку, но и подготовить квартиру к своему переезду или сдаче в аренду

Подробнее о доме

  • Тип дома Панельный
  • Тип территории Открытая
  • Количество этажей 9
  • Отопление Центральное

Размещено 30.01.2026

Расположение и инфраструктура

Купите в ипотеку

Поиск исполнителей

Выберите услугу, чтобы увидеть
список надёжных компаний

  • Оценка

    Оценка квартир, домов и земельных участков, коммерческих помещений

Похожие квартиры