3-к. квартира, 59,4 м²

Номер лота: 74036619

Башкортостан Республика, Кармаскалинский район, Кармаскалы с., Мира ул., д.1

1/16

  • 3

    Комнаты

  • 59,4 м²

    Общая

  • 35 м²

    Жилая

  • 8,6 м²

    Кухня

  • 1

    Этаж

  • Прямая продажа
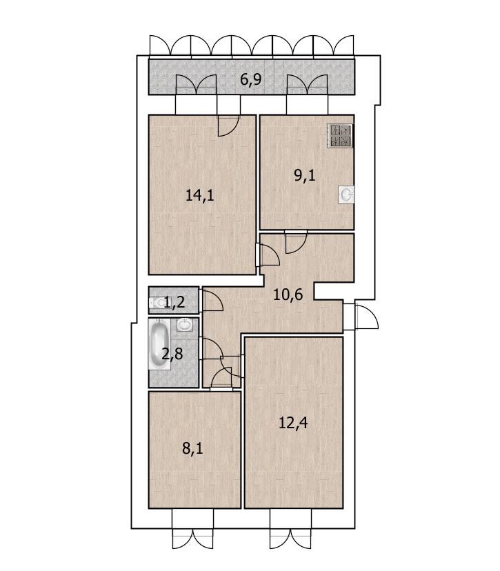
Трехкомнатная квартира в центре Кармаскалов, расположенная по адресу: ул. Мира, д. 1, 1/2 этажность. Общая площадь 59,4 м2. Сделан хороший ремонт: полы залиты, проводка заменена. В шаговой доступности магазины, школа, садик. ........................................................................................... КОММУНИКАЦИИ: -хорошо отапливаемое помещение. .......................................................................................... ИНФРАСТРУКТУРА: - Школа: №1 - Детский сад: - Остановка: Автостанция село Кармаскалы - Поликлиника: Кармаскалинская центральная районная больница ........................................................................................... ЛЕГКО КУПИТЬ: -3 собственника Гарантия юридической чистоты сделки от компании. Звоните. Записывайтесь на показ объекта прямо сейчас. Рады будем ответить на все ваши вопросы с 9:00 до 21:00.

Подробнее о квартире

  • Количество комнат 3
  • Общая площадь 59,4 м²
  • Жилая площадь 35 м²
  • Площадь кухни 8,6 м²
  • Площадь комнаты №1 15 м²
  • Площадь комнаты №2 10 м²
  • Площадь комнаты №3 10 м²
  • Этаж 1
  • Высота потолков 2.8 м
  • Тип планировки Изолированные
  • Ремонт Косметический
  • Санузел раздельный 1

Пакеты услуг для этой квартиры

Мы подобрали всё необходимое, чтобы вы могли не только оформить сделку, но и подготовить квартиру к своему переезду или сдаче в аренду

Подробнее о доме

  • Тип дома Кирпичный
  • Тип территории Открытая
  • Количество этажей 2
  • Отопление Центральное

Размещено 17.09.2024

Расположение и инфраструктура

Купите в ипотеку

Поиск исполнителей

Выберите услугу, чтобы увидеть
список надёжных компаний

  • Оценка

    Оценка квартир, домов и земельных участков, коммерческих помещений

Похожие квартиры