2-к. квартира, 60 м²

Номер лота: 115771381

Московская область, Люберецкий район, Люберцы г., Зенино ЖК Самолёт мкр, Камова ул., д.9, к.1

2-комнатная 60 м2 в ЖК undefined корпус null этаж 5

1/32

  • 2

    Комнаты

  • 60 м²

    Общая

  • 27 м²

    Жилая

  • 17 м²

    Кухня

  • 5

    Этаж

  • Прямая продажа

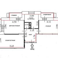
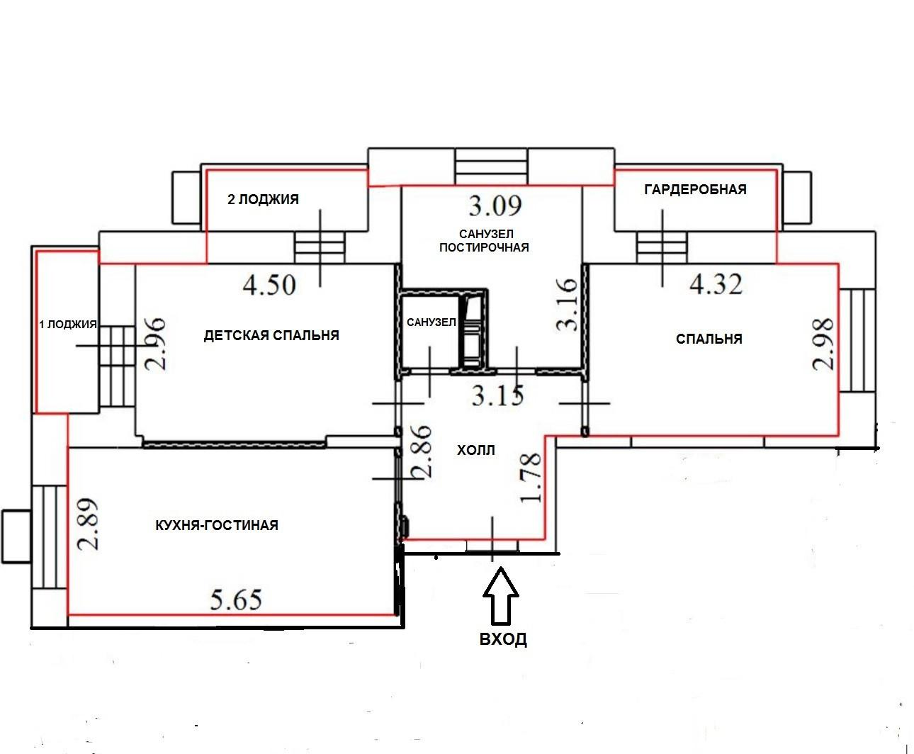
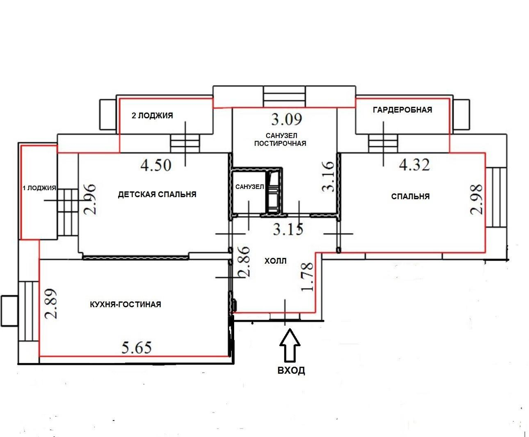
Три лоджии!!! уникальный вариант!

Уникальное предложение, продается двухкомнатная квартира в современном ЖК «Самолет Люберцы». Самая лучшая планировка в доме: кухня-гостиная, две изолированные комнаты, три лоджии - одна используется как гардеробная комната, два санузла, просторная постирочная с окном и большой холл. В квартире выполнен качественный ремонт, все продумано до мелочей. Мебель остается в качестве бонуса новым собственникам. Окна выходят на улицу и во двор, ухоженная придомовая территория со множеством детских и спортивных площадок. В подъезде установлено видеонаблюдение. На территории комплекса находится охраняемый наземный и стихийный паркинг. Всегда есть каршеринг. Метро "Некрасовка" находится в 15-и минутной пешей доступности. Множество остановок общественного транспорта до м. "Некрасовка", "Лухмановская", "Выхино", "Новокосино", а также ст. Люберцы - 1, остановка находится рядом с домом, удобный выезд на платную трассу М-12 и МКАД. Идеальное расположение комплекса для комфортной и гармоничной жизни! Идет строительство пешеходного моста Дружба и благоустройство прибрежной зоны озера Черное, что даст возможность сократить пеший маршрут до метро Некрасовка. Данный ЖК славится своей развитой инфраструктурой. Рядом с домом находятся школы, а также детские сады. Оборудованы места для пробежек и велодорожки. В зданиях домов находится множество различных магазинов, супермаркетов, аптеки, а также пункты выдачи различных маркетплейсов. Совсем недавно на территории комплекса построили новую областную поликлинику. Не упустите шанс стать обладателем этой замечательной квартиры! Звоните нам прямо сейчас, чтобы узнать больше и записаться на просмотр.

Подробнее о квартире

  • Количество комнат 2
  • Общая площадь 60 м²
  • Жилая площадь 27 м²
  • Площадь кухни 17 м²
  • Площадь прихожей 9 м²
  • Площадь комнаты №1 13 м²
  • Площадь комнаты №2 14 м²
  • Этаж 5
  • Тип планировки Изолированные
  • Санузел раздельный 1
  • Санузел совмещенный 1

Пакеты услуг для этой квартиры

Мы подобрали всё необходимое, чтобы вы могли не только оформить сделку, но и подготовить квартиру к своему переезду или сдаче в аренду

Подробнее о доме

  • Тип территории Открытая
  • Количество этажей 17
  • Отопление Центральное

Размещено 05.09.2025

Расположение и инфраструктура

Купите в ипотеку

Поиск исполнителей

Выберите услугу, чтобы увидеть
список надёжных компаний

  • Оценка

    Оценка квартир, домов и земельных участков, коммерческих помещений

Похожие квартиры