2-к. квартира, 57,1 м²

Номер лота: 135165709

Москва, Арбат район, Панфиловский пер., д.5

2-комнатная 57.1 м2 в ЖК undefined корпус null этаж 3

1/15

  • 2

    Комнаты

  • 57,1 м²

    Общая

  • 31,7 м²

    Жилая

  • 11,7 м²

    Кухня

  • 3

    Этаж

  • 1917

    Год постройки

  • Прямая продажа
Продажа 2-комнатной квартиры в историческом доме у м. Смоленская О ДОМЕ: История и качество в самом центре Москвы Квартира расположена в кирпичном доме 1917 года постройки в Панфиловском переулке — в самом сердце престижного района Арбат. Дом является частью исторической застройки. Согласно архивным данным, проект реконструкции здания разрабатывался архитектором И.М. Ткачом (ист. ЦГАМ, ф. 534, оп. 1, дела 61, 106) для завода "Серп и Молот".Конструктив: Каркас и стены — кирпичные. Перекрытия — деревянные. Это классическая для своего времени надежная конструкция, обеспечивающая отличную шумо- и теплоизоляцию и особую атмосферу. Общественные зоны: Просторные, светлые и всегда чистые лестничные проемы и холлы. Двор: установка шлагбаума намечена на весну 2026. Во дворе — детская площадка и зона отдыха. В мая 2026 начинаются городские работы по благоустройству придомовой территории по расширению полотна асфальтового покрытия, обновление газона, высадка кустарников и пр. Соседи: Сложившееся сообщество спокойных и интеллигентных жителей. О КВАРТИРЕ: Пространство для полёта вашей фантазии. Это не просто квартира, а пространство с уникальной атмосферой старой Москвы и безграничным потенциалом.Общая площадь: 57.1 кв.м. Планировка: 2 изолированные комнаты, просторная кухня 11 кв.м., гостиная с балконом, вместительный коридор. Особенности: Раздельный санузел. Главная «изюминка» — подлинные трехметровые потолки, которые визуально расширяют пространство и наполняют его светом. Состояние: Требуется ремонт. Это уникальная возможность стать автором дизайна своей будущей квартиры в историческом доме в центре столицы. ИНФРАСТРУКТУРА: Панфиловский переулок протяженностью около 190 метров находится всего в 3,1 км от Кремля. Это тихий и зеленый островок в двух шагах от главных артерий города.Транспорт: 5 минут пешком до станций метро «Смоленская» (Арбатско-Покровская и Филёвская линии). Отличный выезд на Садовое кольцо и Новый Арбат. Для жизни и отдыха: Во дворе — много зелени, набережная Москвы-реки. В шаговой доступности: поликлиника, школы, детские сады, фитнес-клубы. Торговля и услуги: рядом банки, сетевые магазины, кафе и торговые центры. УСЛОВИЯ СДЕЛКИ: Право собственности: 1 собственник. Квартира получена в наследство по закону. Прописка: Никто не прописан. Состояние объекта: Перепланировок нет. Обременений нет. Прочее: Свободная продажа. Это шанс приобрести не просто жилье, а частицу истории Москвы и создать в ней свой уникальный мир.

Подробнее о квартире

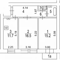
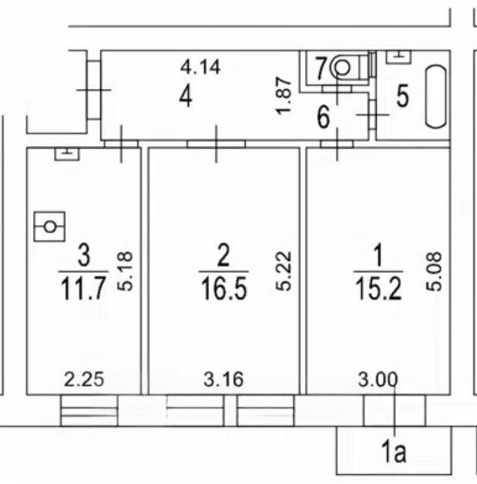
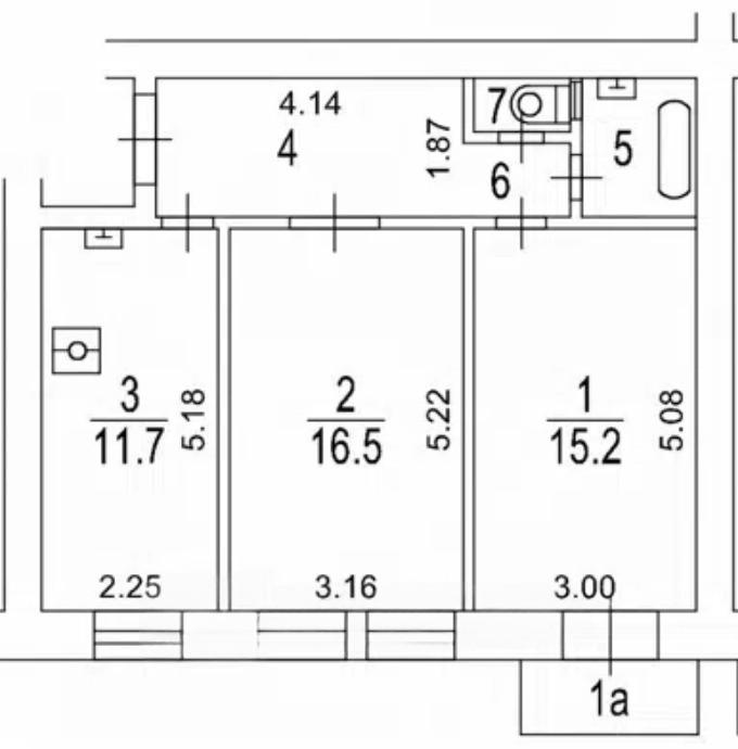
  • Количество комнат 2
  • Общая площадь 57,1 м²
  • Жилая площадь 31,7 м²
  • Площадь кухни 11,7 м²
  • Площадь комнаты №1 16,5 м²
  • Площадь комнаты №2 15,2 м²
  • Этаж 3
  • Высота потолков 3 м
  • Тип планировки Изолированные
  • Ремонт Требует ремонта
  • Санузел раздельный 1

Пакеты услуг для этой квартиры

Мы подобрали всё необходимое, чтобы вы могли не только оформить сделку, но и подготовить квартиру к своему переезду или сдаче в аренду

Подробнее о доме

  • Год постройки 1917
  • Тип дома Кирпичный
  • Тип территории Открытая
  • Количество этажей 5
  • Отопление Центральное

Размещено 5 часов назад

Расположение и инфраструктура

Купите в ипотеку

Поиск исполнителей

Выберите услугу, чтобы увидеть
список надёжных компаний

  • Оценка

    Оценка квартир, домов и земельных участков, коммерческих помещений

Похожие квартиры