2-к. квартира, 53,8 м²

Номер лота: 74098092

Башкортостан Республика, Уфа г., Советский, Баязита Бикбая ул., д.41

1/24

  • 2

    Комнаты

  • 53,8 м²

    Общая

  • 29,7 м²

    Жилая

  • 8,5 м²

    Кухня

  • 3

    Этаж

  • 1990

    Год постройки

  • Прямая продажа
  • Возможен торг
  • Онлайн-показ
Продается шикарная, светлая и уютная двухкомнатная квартира с ремонтом в Сипайлово у набережной по адресу Баязита Бикбая 41. Комнаты изолированные, распашенка. Просторный коридор, большая кухня. ЛЕНИНГРАДСКИЙ ПРОЕКТ. ********** Данную квартиру можно приобрести по ставке 14,7% ********** Ремонт сделан везде, кроме санузлов. Это позволяет объединить ванну и туалет, при желание, сделав санузел более просторным. Дом находится на набережной, ухоженный пляж в 5 минутах. Очень большой и просторный двор. Огромное количество парковочных мест. Ухоженная территория, хорошие соседи. Все магазины рядом. Рынок Корсо , супермаркеты, различные услуги, развивашки для детей- все это рядом. Школы, садики - Школа №17, Гимназия №84, Детский сад №32, Детский Сад №28. Так же в шаговой доступности остановки общественного транспорта, с которых можно уехать в любую часть города. ЦТО Простор (кинотеатр, рестораны, кагазины), ТСК Сипайловский, Парк культуры и отдыха Кашкадан, фитнес-клуб А-Fitnеss - 10 минут пешком. ********** Один взрослый собственник. Без долгов и обременений. Ипотека и все виды сертификатов возможны. Доп. описание: санузел совмещенный, пластиковые окна, в доме есть: детская площадка, открытый двор, наземный паркинг, лифт пассажирский, лифт грузовой, косметический ремонт, также имеются: телефон, интернет, кабельное телевидение, счетчики холодной и горячей воды, домофон, железная дверь Номер в базе: 11197626. Район: Октябрьский Один взрослый собственник, без обременений и долгов. Гарантия юридической чистоты сделки от компании! Звоните! Записывайтесь на показ объекта прямо сейчас Рады будем ответить на все ваши вопросы. с 9:00 до 21:00​.

Подробнее о квартире

  • Количество комнат 2
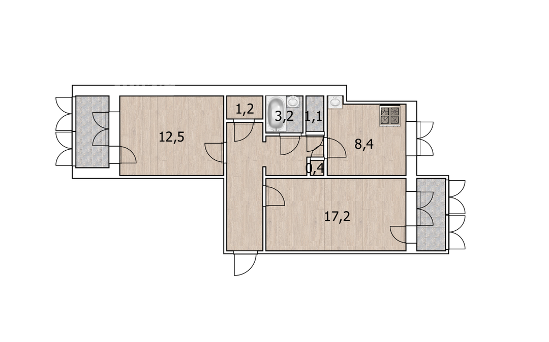
  • Общая площадь 53,8 м²
  • Жилая площадь 29,7 м²
  • Площадь кухни 8,5 м²
  • Площадь комнаты №1 17,2 м²
  • Площадь комнаты №2 12,5 м²
  • Этаж 3
  • Высота потолков 2.5 м
  • Тип планировки Изолированные
  • Санузел раздельный 1

Пакеты услуг для этой квартиры

Мы подобрали всё необходимое, чтобы вы могли не только оформить сделку, но и подготовить квартиру к своему переезду или сдаче в аренду

Подробнее о доме

  • Год постройки 1990
  • Тип дома Панельный
  • Тип территории Открытая
  • Количество этажей 12
  • Отопление Центральное

Размещено 18.09.2024

Расположение и инфраструктура

Купите в ипотеку

Поиск исполнителей

Выберите услугу, чтобы увидеть
список надёжных компаний

  • Оценка

    Оценка квартир, домов и земельных участков, коммерческих помещений

Похожие квартиры