2-к. квартира, 52,5 м²

Номер лота: 129886062

Хабаровский край, Комсомольск-на-Амуре г., Центральный, Первостроителей пр-кт., д.19

2-комнатная 52.5 м2 в ЖК undefined корпус null этаж 2

1/12

  • 2

    Комнаты

  • 52,5 м²

    Общая

  • 31,6 м²

    Жилая

  • 9 м²

    Кухня

  • 2

    Этаж

  • Прямая продажа

В продаже 2-х комнатная квартира

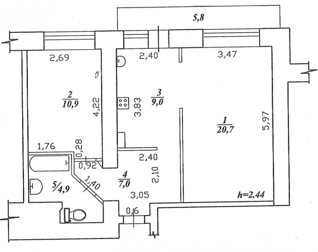
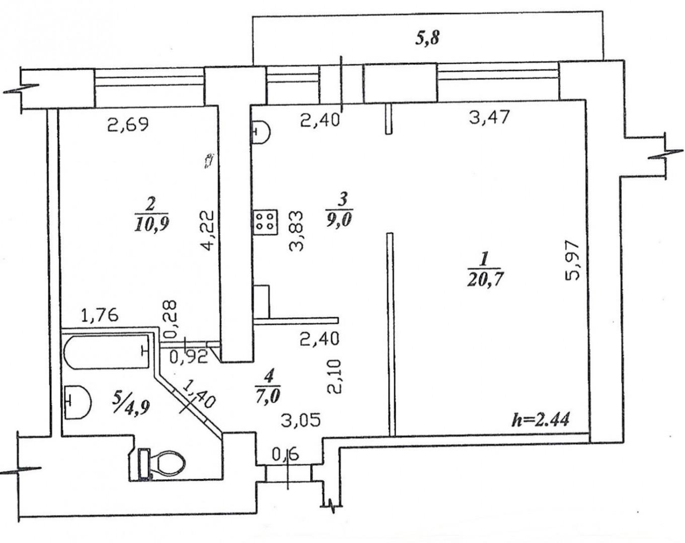
В продаже квартира улучшенной планировки площадью 52.5 м², на комфортном втором этаже девяти этажного кирпичного дома. Во всей квартире установлены современные алюминиевые батареи, пластиковый стеклопакет, балкон площадью 6м² остеклён – тепло и уют гарантированы. Стены оформлены в современных обоях и декоративной штукатурке, полы – ламинат и керамическая плитка. Большой санузел отделанный современным кафелем с полностью замененными коммуникациями. Во дворе расположены 2 детских сада (№54, №15) и средняя школа №27. На первом этаже дома расположены: детский развивающий клуб "Лектроника", "Пятёрочка", пекарня – все необходимое в двух шагах от вашей двери! В пешей доступности: государственный университет КнАГУ, ТЦ "Платинум", Драматический театр, Яблоневый сад, коммерческие медицинские учреждения– максимум удобств без лишних передвижений. Не упустите возможность стать обладателем замечательной квартиры! Звоните прямо сейчас, чтобы договориться о просмотре.

Подробнее о квартире

  • Количество комнат 2
  • Общая площадь 52,5 м²
  • Жилая площадь 31,6 м²
  • Площадь кухни 9 м²
  • Площадь прихожей 7 м²
  • Площадь комнаты №1 10,9 м²
  • Площадь комнаты №2 20,7 м²
  • Этаж 2
  • Высота потолков 2.55 м
  • Тип планировки Изолированные
  • Ремонт Косметический
  • Санузел совмещенный 1

Пакеты услуг для этой квартиры

Мы подобрали всё необходимое, чтобы вы могли не только оформить сделку, но и подготовить квартиру к своему переезду или сдаче в аренду

Подробнее о доме

  • Тип дома Кирпичный
  • Тип территории Открытая
  • Количество этажей 9
  • Отопление Центральное

Размещено 10.02.2026

Расположение и инфраструктура

Купите в ипотеку

Поиск исполнителей

Выберите услугу, чтобы увидеть
список надёжных компаний

  • Оценка

    Оценка квартир, домов и земельных участков, коммерческих помещений

Похожие квартиры