2-к. квартира, 47,5 м²

Номер лота: 132623277

Московская область, Дмитровский район, Дмитров г., Ковригино д., Северная ул., д.41

2-комнатная 47.5 м2 в ЖК undefined корпус null этаж 4

1/13

  • 2

    Комнаты

  • 47,5 м²

    Общая

  • 27,3 м²

    Жилая

  • 7,8 м²

    Кухня

  • 4

    Этаж

  • Прямая продажа

Квартира в тихом поселке

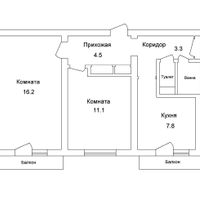
Ипотека по ставке от 11.9 % на весь срок, или 1,5% на первые два года, что существенно снизит ежемесячный платеж! Позвоните, рекомендую не тянуть с просмотром Предлагается 2- комнатная квартира Адрес: д. Ковринино Направление: Дмитровское шоссе Количество комнат: 2 Общая площадь, м2: 47.5 Этаж/этажность: 4/5 Тип дома: панельный Состояние: с ремонтом Сан.узел: совмещен Наличие балкона/лоджии: два балкона Квартира: Продается 2 комнатная квартира в д. Ковригино. Общая площадь 47.5 кв.м. Просторная кухня 7.8 кв.м, комнаты изолированы 11.1 и 16.2 кв.м. Квартира требует ремонта, батареи заменены. Квартира теплая, светлая, хорошие соседи. Район: Объект расположен в д. Ковригино, окружен лесным массивом богатым грибами и ягодами. В деревне есть небольшой продуктовый магазинчик. До остановки общественного транспорта 6 минут пешком. Легко купить: Квартира подходит под ипотеку, поможем одобрить при необходимости.

Подробнее о квартире

  • Количество комнат 2
  • Общая площадь 47,5 м²
  • Жилая площадь 27,3 м²
  • Площадь кухни 7,8 м²
  • Площадь комнаты №1 11,1 м²
  • Площадь комнаты №2 16,2 м²
  • Этаж 4
  • Тип планировки Изолированные
  • Ремонт Косметический
  • Санузел раздельный 1

Пакеты услуг для этой квартиры

Мы подобрали всё необходимое, чтобы вы могли не только оформить сделку, но и подготовить квартиру к своему переезду или сдаче в аренду

Подробнее о доме

  • Тип дома Панельный
  • Тип территории Открытая
  • Количество этажей 5
  • Отопление Центральное

Размещено 11.03.2026

Расположение и инфраструктура

Купите в ипотеку

Поиск исполнителей

Выберите услугу, чтобы увидеть
список надёжных компаний

  • Оценка

    Оценка квартир, домов и земельных участков, коммерческих помещений

Похожие квартиры