2-к. квартира, 46,2 м²

Номер лота: 134998138

Москва, Орехово-Борисово Северное район, Ореховый б-р., д.25

2-комнатная 46.2 м2 в ЖК undefined корпус null этаж 3

1/16

  • 2

    Комнаты

  • 46,2 м²

    Общая

  • 30,3 м²

    Жилая

  • 6,7 м²

    Кухня

  • 3

    Этаж

  • 1975

    Год постройки

  • Прямая продажа
Тихий, зеленый с хорошей инфраструктурой спальный район Москвы. Вокруг много парковых и прогулочных зон. В продаже 2-х комнатная квартира в непосредственной близости от метро - всего 3-4 минуты пешком. В прошлом году обновлен фасад дома, сделаны входные группы, в этом году ждем капитального ремонта. Не смотря на возраст дома, планировка удобная и просторная. Комнаты 14 м2 и 16 м2. Большой балкон. Раздельный сан.узел, в коридоре есть место под встроенный шкаф. Ремонт нужен. Квартира светлая и очень теплая. Красивый вид из окон на зеленый бульвар. Сейчас бульвар активно обновляется - увеличивают пешеходные дорожки, делают велосипедную полосу. Хороший тихий двор и детская площадка. Во дворе и школа и детский сад. Все, что необходимо для комфортной жизни - в пешей доступности. Свободная продажа. Без обременений. Быстрый выход на сделку.

Подробнее о квартире

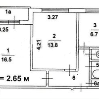
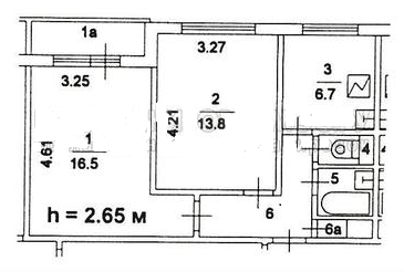
  • Количество комнат 2
  • Общая площадь 46,2 м²
  • Жилая площадь 30,3 м²
  • Площадь кухни 6,7 м²
  • Площадь прихожей 6 м²
  • Площадь комнаты №1 13,8 м²
  • Площадь комнаты №2 16,5 м²
  • Этаж 3
  • Высота потолков 2.65 м
  • Тип планировки Изолированные
  • Ремонт Требует ремонта
  • Санузел раздельный 1

Пакеты услуг для этой квартиры

Мы подобрали всё необходимое, чтобы вы могли не только оформить сделку, но и подготовить квартиру к своему переезду или сдаче в аренду

Подробнее о доме

  • Год постройки 1975
  • Тип дома Панельный
  • Мусоропровод Да
  • Тип территории Открытая
  • Количество этажей 12
  • Отопление Центральное

Размещено 7 часов назад

Расположение и инфраструктура

Купите в ипотеку

Поиск исполнителей

Выберите услугу, чтобы увидеть
список надёжных компаний

  • Оценка

    Оценка квартир, домов и земельных участков, коммерческих помещений

Похожие квартиры