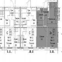
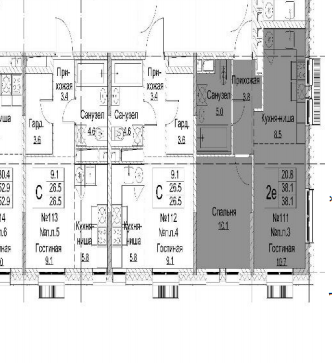
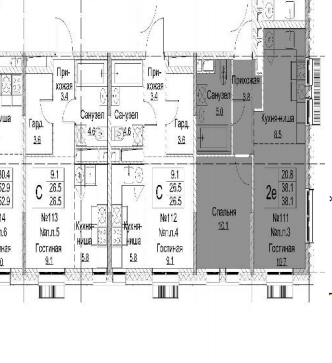
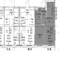
2-к. квартира, 38,1 м²

Номер лота: 134813034

Москва, Печатники район, к.1

2-комнатная 38.1 м2 в ЖК undefined корпус null этаж 14

1/7

  • 2

    Комнаты

  • 38,1 м²

    Общая

  • 20,8 м²

    Жилая

  • 8,5 м²

    Кухня

  • 14

    Этаж

  • Переуступка

Евро двушка жк квартал на воде

Продается отличная евро двухкомнатная комнатная квартира в ЖК бизнес-класса Квартал на воде. Дом сдан,на данный момент ведутся отделочные работы.Выдача ключей в июне 2026 года. Квартира с чистовой отделкой,полностью укомплектована мебелью и техникой + кондиционер. Площадь комнат 10.7 м2 и 10.1 м2. Кухня 8.5 м2. Санузел 5 м2 и прихожая 3.8 м2. Уникальность данной квартиры - окна на две стороны дома,благодаря чему кухня и комната прилегающая к ней имеют достаточно естественного освещения . При желании можно отделить комнату от кухни и в обоих комнатах будут окна. Отлична локация ЖК - расположение на берегу Москвы-реки в районе Печатники,которая включает в себя абсолютно все для комфортной жизни: школы,лицеи,детские сады, ВУЗы, спортивные комплексы,медицинские учреждения и многое другое. В пешей доступности расположен парк Печатники. Важные преимущества ЖК: - УВК с детским садом и школой на 925 мест; - коммерческая инфраструктура на первых этажах; - приватные дворы «без машин» с плейхабами для детей, прогулочными дорожками и зонами отдыха; - собственная благоустроенная набережная; - подземный и наземный паркинги, гостевая стоянка; - дизайнерские входные группы; - помещения для колясок и велосипедов; - охрана и видеонаблюдение. Отличная транспортная доступность: МЦД Перерва - 5 минут неспешным шагом. ТТК - около 15 минут на авто. Через год в 10 минутах от комплекса планируется открытие станции метро «Батюнино» Бирюлевской линии. Отличная возможность приобрести квартиру в перспективном Жилом комплексе,где цена будет только расти.Не упустите ее!!! Звоните, отвечу на все ваши вопросы. 1 взрослый собственник,быстрый выход на сделку. Для наших покупателей: помощь в получении ипотеки в ведущих банках, с высокой степенью одобрения специальные скидки по ставкам 0.3-1% одобрение ипотеки по субсидированным ставкам от 11.9 %, консультация бесплатно юридическое сопровождение сделки страхование вашей сделки

Подробнее о квартире

  • Количество комнат 2
  • Общая площадь 38,1 м²
  • Жилая площадь 20,8 м²
  • Площадь кухни 8,5 м²
  • Площадь комнаты №1 10,7 м²
  • Площадь комнаты №2 10,1 м²
  • Этаж 14
  • Тип планировки Изолированные
  • Санузел совмещенный 1

Подробнее о доме

  • Отопление Центральное

Размещено 4 часа назад

Расположение и инфраструктура

Купите в ипотеку

Поиск исполнителей

Выберите услугу, чтобы увидеть
список надёжных компаний

  • Оценка

    Оценка квартир, домов и земельных участков, коммерческих помещений

Похожие квартиры