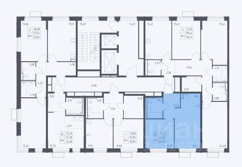
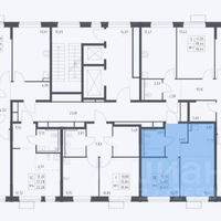
2-к. квартира, 34,6 м²

Номер лота: 134583381

Москва, Молжаниновский район, Ленинградское ш., д.229Б, к.2

1/6

  • 2

    Комнаты

  • 34,6 м²

    Общая

  • 26,3 м²

    Жилая

  • 6,6 м²

    Кухня

  • 4

    Этаж

  • 2027

    Год постройки

  • Переуступка
Переуступка права требования! Продается "евродвушка" 34,6 м² в современном ЖК «Молжаниново» — всего 15 минут пешком до МЦД-3 «Новоподрезково». 4 этаж из 8 — комфортный уровень проживания Московская прописка Сдача — 3 квартал 2026 года О квартире: ️ 2 изолированные комнаты️ Чистовая отделка от застройщика️ Полностью укомплектована мебелью ️ Кухонный гарнитур + встроенная техника: — варочная панель — духовой шкаф — посудомоечная машина — вытяжка — холодильник️ Произведен монтаж систем кондиционирования О жилом комплексе: ️ Концепция «двор без машин»️️ Детские и спортивные площадки️ Прогулочные зоны, набережная, велодорожки️ Колясочные и места для хранения Инфраструктура: ️ Детские сады и школы прямо в ЖК️ Магазины, кафе, аптеки, салоны — всё рядом️ ТЦ «Мега Химки» — 5–10 минут️ Удобный выезд на Ленинградское и Пятницкое шоссе Транспорт: МЦД-3 «Новоподрезково» — пешая доступность Всего 10 км до МКАД ️ Отличный вариант как для жизни, так и для инвестиций

Подробнее о квартире

  • Количество комнат 2
  • Общая площадь 34,6 м²
  • Жилая площадь 26,3 м²
  • Площадь кухни 6,6 м²
  • Площадь комнаты №1 19,7 м²
  • Площадь комнаты №2 6,6 м²
  • Этаж 4
  • Высота потолков 2.7 м
  • Тип планировки Изолированные
  • Санузел совмещенный 1

Подробнее о доме

  • Год постройки 2027
  • Тип дома Монолитно - кирпичный
  • Тип территории Открытая
  • Количество этажей 8
  • Отопление Центральное

Размещено 11 часов назад

Расположение и инфраструктура

Купите в ипотеку

Поиск исполнителей

Выберите услугу, чтобы увидеть
список надёжных компаний

  • Оценка

    Оценка квартир, домов и земельных участков, коммерческих помещений

Похожие квартиры