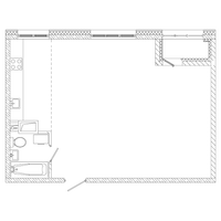
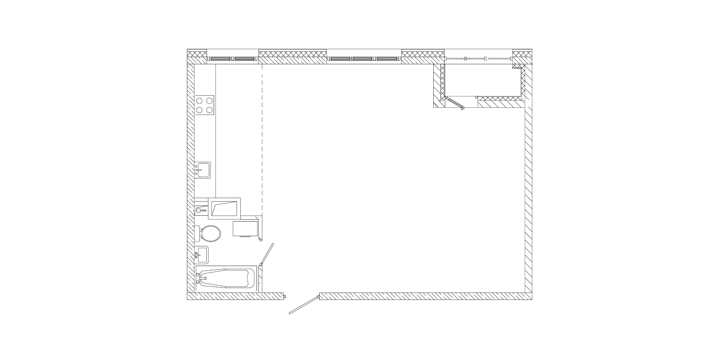
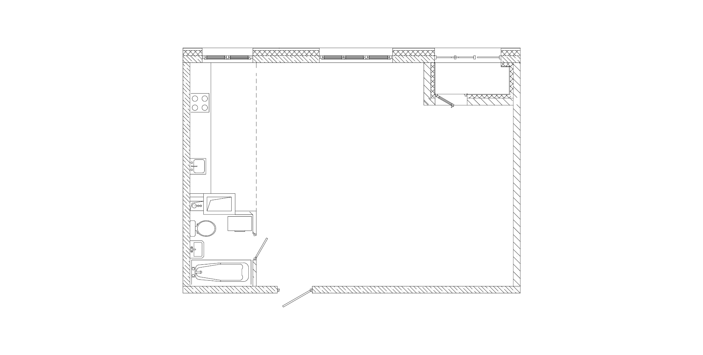
2-к. квартира, 56 м²

Номер лота: 661654010e12e7996113b209

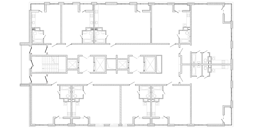
Россия, Приморский край, Владивосток, Снеговая улица, 9к1

2-комнатная 56 м2 в ЖК Исторический корпус null этаж 4
2-комнатная 56 м2 в ЖК Исторический корпус null этаж 4

1/3

  • 2

    Комнаты

  • 56 м²

    Общая

  • 4 из 23

    Этаж

  • 2025

    Год постройки

  • Прямая продажа

Подробнее о квартире

  • Количество комнат 2
  • Общая площадь 56 м²
  • Этаж 4 из 23
  • Высота потолков 2 м

Подробнее о доме

  • Год постройки 2025
  • Этап строительства Сдан в эксплуатацию
  • Тип дома Монолитный
  • Лифт пассажирский 4
  • Лифт грузовой 4
  • Количество этажей 23
  • Тип парковки Подземная

Размещено 10.04.2024

Расположение и инфраструктура

Купите в ипотеку

Поиск исполнителей

Выберите услугу, чтобы увидеть
список надёжных компаний

  • Оценка

    Оценка квартир, домов и земельных участков, коммерческих помещений

Похожие квартиры