1-к. квартира, 49,6 м²

Номер лота: 134965223

Москва, Зеленоград г., д.1012

1-комнатная 49.6 м2 в ЖК undefined корпус null этаж 20

1/10

  • 1

    Комнаты

  • 49,6 м²

    Общая

  • 19,9 м²

    Жилая

  • 12,7 м²

    Кухня

  • 20

    Этаж

  • Прямая продажа
  • Онлайн-показ

1-к. квартира, 49,6 м², 20/22 эт.

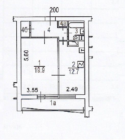
Уютная однокомнатная квартира в тихом районе — идеальное место для жизни! Откройте для себя комфорт городской жизни с этой светлой и уютной однокомнатной квартирой в одном из самых спокойных районов города! Основные характеристики Тип: однокомнатная квартира. Общая площадь: 49,6 м². Жилая площадь: 19,9 м². Площадь кухни: 12,7 м². Лоджия: 7,5 м² (в хорошем состоянии). Этаж: 20/22. Планировка: стандартная И‑580 (без перепланировок). Состояние квартиры Квартира полностью готова к заселению — можно въезжать и жить без дополнительных вложений! Частичный косметический ремонт (2025 год). Потолки: классическая шпаклёвка. Стены: коридор и спальня — бумажные обои; кухня — моющиеся обои. Полы: коридор и спальня — качественный деревянный натуральный советский паркет; кухня — линолеум. Сантехника и отопление: трубы обновлены в 2023 году по кап. ремонту, в отличном состоянии. Окна: качественные пластиковые. Дверь: стальная с шумоизоляцией. Дом и территория Год постройки: 1980 (панельный дом). Подъезд: чистый, ухоженный, с консьержем и видеонаблюдением. Лифты: 4 (2 грузовых и 2 пассажирских). Двор: большая детская площадка; спортивная площадка с тренажёрами; настольный теннис; футбольное поле; удобные лавочки для отдыха. Парковка: достаточно мест во дворе. Рядом — живописный парк с белочками и уточками, чистое озеро и оборудованный песчаный пляж с детскими и спортивными площадками. Инфраструктура Всё необходимое — в шаговой доступности: Транспорт: автобусная остановка рядом с домом, до МЦД — чуть больше 10 минут пешком. Торговля и развлечения: в 9 минутах — торговый центр «Иридиум» с кинотеатром и парком развлечений, а также рынок со свежими и выгодными продуктами. Образование и медицина: дошкольная группа — 5 минут пешком; школа и библиотека — 10 минут; поликлиника — 15 минут. Дополнительно: круглосуточная аптека в районе. Юридические аспекты и условия сделки Собственник: одна владелица (дееспособна). Срок владения: с 2011 года (по договору купли‑продажи). Юридическая чистота: полная проверка проведена, обременений и долгов нет. Материнский капитал: не использовался. Финансовые условия Коммунальные платежи: около 5 000 руб./мес. Что остаётся: кухонный гарнитур и большой шкаф. Сделка: осуществляется при поддержке агентства недвижимости «Самолёт Плюс Зеленоград». Дополнительно: рассматривается обмен на двухкомнатную квартиру в 16‑м, 15‑м или 9‑м районах с нашей доплатой. Скорость сделки: быстрая продажа при поддержке опытных специалистов. Гарант и посредник — федеральное агентство недвижимости (главный офис на Новокрюковской, 7). ____________________________________________________________________________________________________________ Организуем просмотр в удобное для вас время! Не упустите шанс стать владельцем уютной квартиры в развитом районе с отличной инфраструктурой! Звоните прямо сейчас!

Подробнее о квартире

  • Количество комнат 1
  • Общая площадь 49,6 м²
  • Жилая площадь 19,9 м²
  • Площадь кухни 12,7 м²
  • Площадь прихожей 5,5 м²
  • Площадь комнаты №1 19,9 м²
  • Этаж 20
  • Высота потолков 2.64 м
  • Тип планировки Изолированные
  • Ремонт Косметический
  • Санузел совмещенный 1

Пакеты услуг для этой квартиры

Мы подобрали всё необходимое, чтобы вы могли не только оформить сделку, но и подготовить квартиру к своему переезду или сдаче в аренду

Подробнее о доме

  • Тип дома Панельный
  • Мусоропровод Да
  • Тип территории Открытая
  • Количество этажей 22
  • Отопление Индивидуальное отопление

Размещено 4 часа назад

Расположение и инфраструктура

Купите в ипотеку

Поиск исполнителей

Выберите услугу, чтобы увидеть
список надёжных компаний

  • Оценка

    Оценка квартир, домов и земельных участков, коммерческих помещений

Похожие квартиры