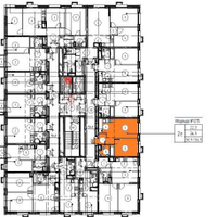
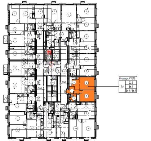
1-к. квартира, 36,9 м²

Номер лота: 135165745

Москва, Сосенское район, Газопровод п., Сосенское, к.8

1-комнатная 36.9 м2 в ЖК undefined корпус null этаж 5

1/13

  • 1

    Комнаты

  • 36,9 м²

    Общая

  • 22,3 м²

    Жилая

  • 6,6 м²

    Кухня

  • 5

    Этаж

  • 2026

    Год постройки

  • Переуступка
В стоимость включена предчистовая отделка квартиры от застройщика! 5 этаж 17 этажного жилого комплекса бизнес-класса Foreville от 3S Group. Окна выходят во двор - Монолитный дом бизнес-класса в современном ЖК. - Удобное расположение в районе Коммунарка с развитой инфраструктурой. - В шаговой доступности магазины, торговые центры, две школы и детский сад, а также разнообразные точки досуга. Транспортная доступность - Всего 20 минут пешком до станции метро Корниловская. - Удобный выезд на МКАД и Калужское шоссе. Один собственник, обременений нет.

Подробнее о квартире

  • Количество комнат 1
  • Общая площадь 36,9 м²
  • Жилая площадь 22,3 м²
  • Площадь кухни 6,6 м²
  • Площадь комнаты №1 22,3 м²
  • Этаж 5
  • Тип планировки Изолированные
  • Санузел совмещенный 1

Подробнее о доме

  • Год постройки 2026
  • Тип дома Монолитно - кирпичный
  • Тип территории Открытая
  • Количество этажей 17
  • Отопление Центральное

Размещено 1 день назад

Расположение и инфраструктура

Купите в ипотеку

Поиск исполнителей

Выберите услугу, чтобы увидеть
список надёжных компаний

  • Оценка

    Оценка квартир, домов и земельных участков, коммерческих помещений

Похожие квартиры