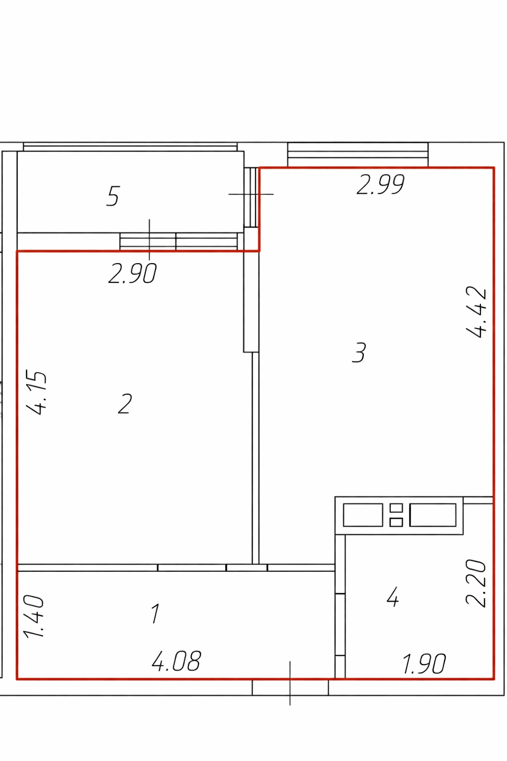
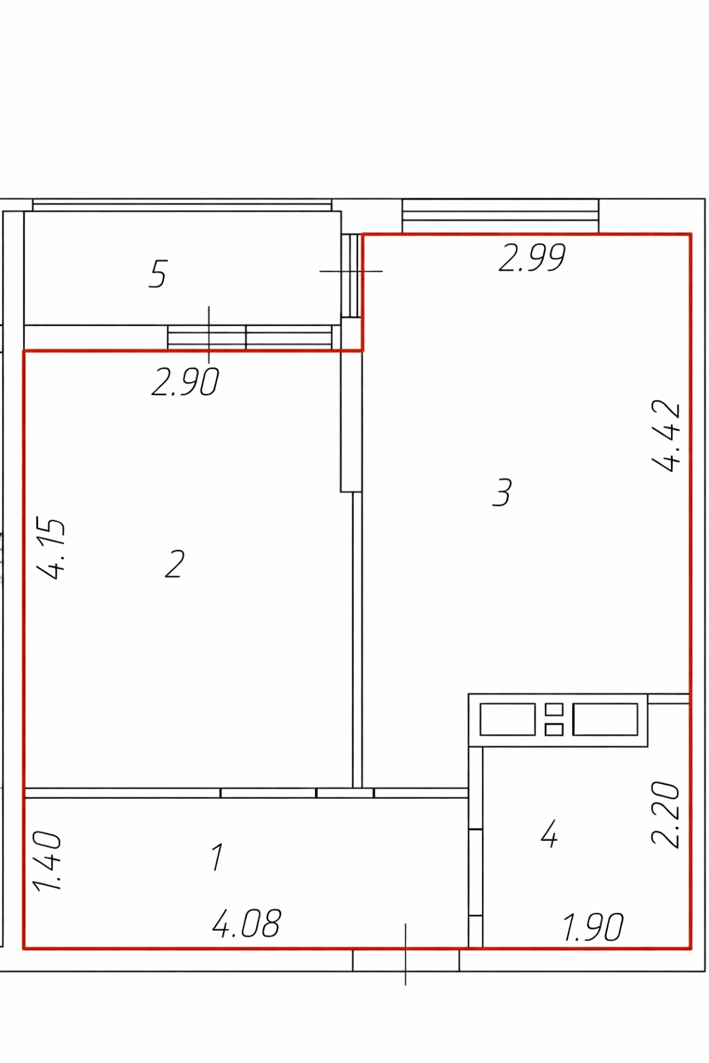
1-к. квартира, 35,5 м²

Номер лота: 134146397

Краснодарский край, Краснодар г., Прикубанский, Западный Обход ул., д.39/2

1-комнатная 35.5 м2 в ЖК undefined корпус null этаж 13

1/13

  • 1

    Комнаты

  • 35,5 м²

    Общая

  • 13 м²

    Жилая

  • 13 м²

    Кухня

  • 13

    Этаж

  • 2024

    Год постройки

  • Прямая продажа
Уютная квартира с удобной планировкой и потенциалом перепланировки. Продаётся светлая и функциональная квартира площадью 35,5 м² с продуманной планировкой. Отличный вариант как для проживания, так и для инвестиций под аренду. Квартира включает в себя просторную жилую комнату правильной формы, отдельную кухню, удобную прихожую и совмещённый санузел. Также есть балкон, который можно использовать как дополнительное пространство для отдыха или хранения. Планировка позволяет грамотно зонировать пространство или при желании реализовать современный формат «евро-двушки» с кухней-гостиной и отдельной спальней. Квартира светлая, с хорошей геометрией помещений, что даёт возможность легко реализовать любой дизайн-проект. Преимущества:\ — удобная планировка — изолированные зоны — балкон — подходит под аренду — хороший потенциал для перепланировки Отличный вариант для: — собственного проживания — сдачи в аренду — инвестиций Звоните, отвечу на все вопросы и организую показ в удобное время.

Подробнее о квартире

  • Количество комнат 1
  • Общая площадь 35,5 м²
  • Жилая площадь 13 м²
  • Площадь кухни 13 м²
  • Площадь комнаты №1 13 м²
  • Этаж 13
  • Высота потолков 2.6 м
  • Тип планировки Изолированные
  • Ремонт Дизайнерский
  • Санузел совмещенный 1

Пакеты услуг для этой квартиры

Мы подобрали всё необходимое, чтобы вы могли не только оформить сделку, но и подготовить квартиру к своему переезду или сдаче в аренду

Подробнее о доме

  • Год постройки 2024
  • Тип дома Монолитно - кирпичный
  • Мусоропровод Да
  • Тип территории Открытая
  • Количество этажей 16

Размещено 1 неделю назад

Расположение и инфраструктура

Купите в ипотеку

Поиск исполнителей

Выберите услугу, чтобы увидеть
список надёжных компаний

  • Оценка

    Оценка квартир, домов и земельных участков, коммерческих помещений

Похожие квартиры