1-к. квартира, 33,5 м²

Номер лота: 135060992

Краснодарский край, Краснодар г., Карасунский, им. Дмитрия Благоева ул., д.31, к.1

1-комнатная 33.5 м2 в ЖК undefined корпус null этаж 18

1/12

  • 1

    Комнаты

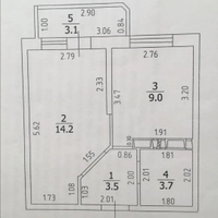
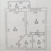
  • 33,5 м²

    Общая

  • 14,2 м²

    Жилая

  • 9 м²

    Кухня

  • 18

    Этаж

  • 2017

    Год постройки

  • Прямая продажа
ХАН В продаже однокомнатная квартира в ЖК Каскад, дом монолит-кирпич 2017 года постройки . Дом комфорт +, имеется подземная парковка, закрытая территория, 4 квартиры на этаже. Квартира с ремонтом, техника и мебель остается новому владельцу. Отличный вариант, как для проживания, так и под готовый бизнес для сдачи. Вся инфраструктура в шаговой доступности: магазины, фитнес центр, поликлиники, остановка общественного транспорта, школы и дет сады.

Подробнее о квартире

  • Количество комнат 1
  • Общая площадь 33,5 м²
  • Жилая площадь 14,2 м²
  • Площадь кухни 9 м²
  • Площадь прихожей 3,5 м²
  • Площадь комнаты №1 14,2 м²
  • Этаж 18
  • Высота потолков 2.7 м
  • Тип планировки Изолированные
  • Ремонт Косметический
  • Санузел совмещенный 1

Пакеты услуг для этой квартиры

Мы подобрали всё необходимое, чтобы вы могли не только оформить сделку, но и подготовить квартиру к своему переезду или сдаче в аренду

Подробнее о доме

  • Год постройки 2017
  • Тип дома Монолитно - кирпичный
  • Тип территории Открытая
  • Количество этажей 24
  • Отопление Центральное

Размещено 4 часа назад

Расположение и инфраструктура

Купите в ипотеку

Поиск исполнителей

Выберите услугу, чтобы увидеть
список надёжных компаний

  • Оценка

    Оценка квартир, домов и земельных участков, коммерческих помещений

Похожие квартиры