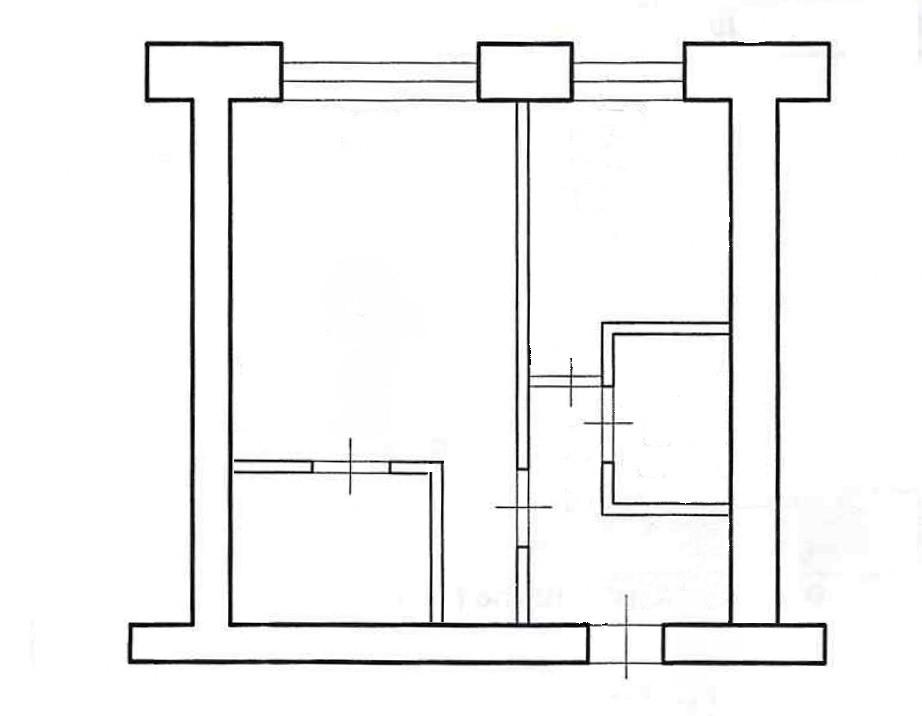
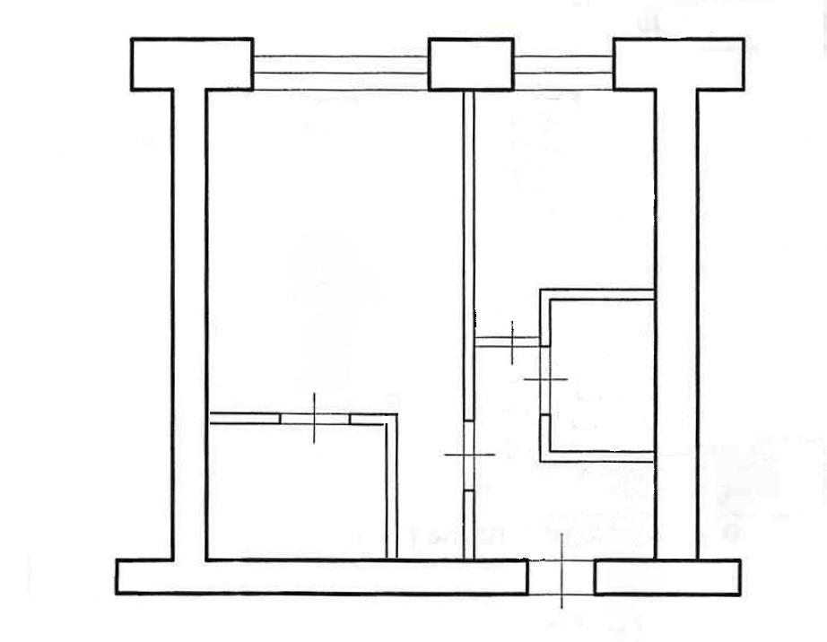
1-к. квартира, 28,3 м²

Номер лота: 129261908

Башкортостан Республика, Кумертау г., Гафури ул., д.7

1-комнатная 28.3 м2 в ЖК undefined корпус null этаж 3

1/21

  • 1

    Комнаты

  • 28,3 м²

    Общая

  • 16,5 м²

    Жилая

  • 5,7 м²

    Кухня

  • 3

    Этаж

  • 1983

    Год постройки

  • Прямая продажа
  • Возможен торг
  • Онлайн-показ

Готовая к жизни уютная "однушка"!

Продается уютная 1-комнатная квартира с косметическим ремонтом, площадью 28,3 кв.м., на комфортном 3-м этаже дома № 7 ул. Гафури! Идеальный вариант для тех, кто ценит практичность и комфорт, будь то для собственного проживания или выгодной сдачи в аренду. Что вас ждет в квартире:Косметический ремонт: можно сразу заехать и жить! Натяжные потолки в зале и на кухне, окна ПВХ. Всегда в наличии горячая вода! Установлен газовый водонагреватель (колонка) - забудьте о сезонных отключениях! Интернет и кабельное ТВ уже проведены. Удобная зонированная ниша в зале, где легко организовать полноценное спальное место или рабочий уголок без ущерба для гостиной зоны. Домофон на входе в подъезд для вашей безопасности. По договоренности новому жильцу в квартире останется мебель, что позволит существенно сэкономить на переезде. Квартира находится в районе с развитой инфраструктурой. В шаговой доступности всё, что нужно для комфортной жизни: школа, детский сад, сквер для прогулок, ГЦС, Центральный рынок, поликлиника, различные магазины, пункты выдачи заказов маркетплейсов, остановки общественного транспорта. Во дворе оборудована детская площадка. Автолюбители оценят наличие мест для парковки во дворе и около дома. Эта квартира - отличное решение для:Молодых пар, мечтающих о первом собственном жилье с минимальными затратами на обустройство. Студентов и молодежи, подбирающих жилье для самостоятельной жизни без хлопот с ремонтом. "Убежденных холостяков", ценящих свое пространство, функциональность и удобство. Инвесторов и арендодателей, ищущих выгодный объект с высоким спросом на аренду. Цена адекватная, соответствует рынку! Один взрослый собственник, нет детских долей и обременений - быстрый выход на сделку! Не упустите возможность приобрести комфортное жилье в отличном районе! Звоните прямо сейчас, чтобы записаться на просмотр! Ваша новая квартира ждет вас!

Подробнее о квартире

  • Количество комнат 1
  • Общая площадь 28,3 м²
  • Жилая площадь 16,5 м²
  • Площадь кухни 5,7 м²
  • Площадь комнаты №1 16,5 м²
  • Этаж 3
  • Высота потолков 2.5 м
  • Тип планировки Изолированные
  • Ремонт Косметический
  • Санузел совмещенный 1

Пакеты услуг для этой квартиры

Мы подобрали всё необходимое, чтобы вы могли не только оформить сделку, но и подготовить квартиру к своему переезду или сдаче в аренду

Подробнее о доме

  • Год постройки 1983
  • Тип дома Кирпичный
  • Тип территории Открытая
  • Количество этажей 5
  • Отопление Центральное

Размещено 29.01.2026

Расположение и инфраструктура

Купите в ипотеку

Поиск исполнителей

Выберите услугу, чтобы увидеть
список надёжных компаний

  • Оценка

    Оценка квартир, домов и земельных участков, коммерческих помещений

Похожие квартиры