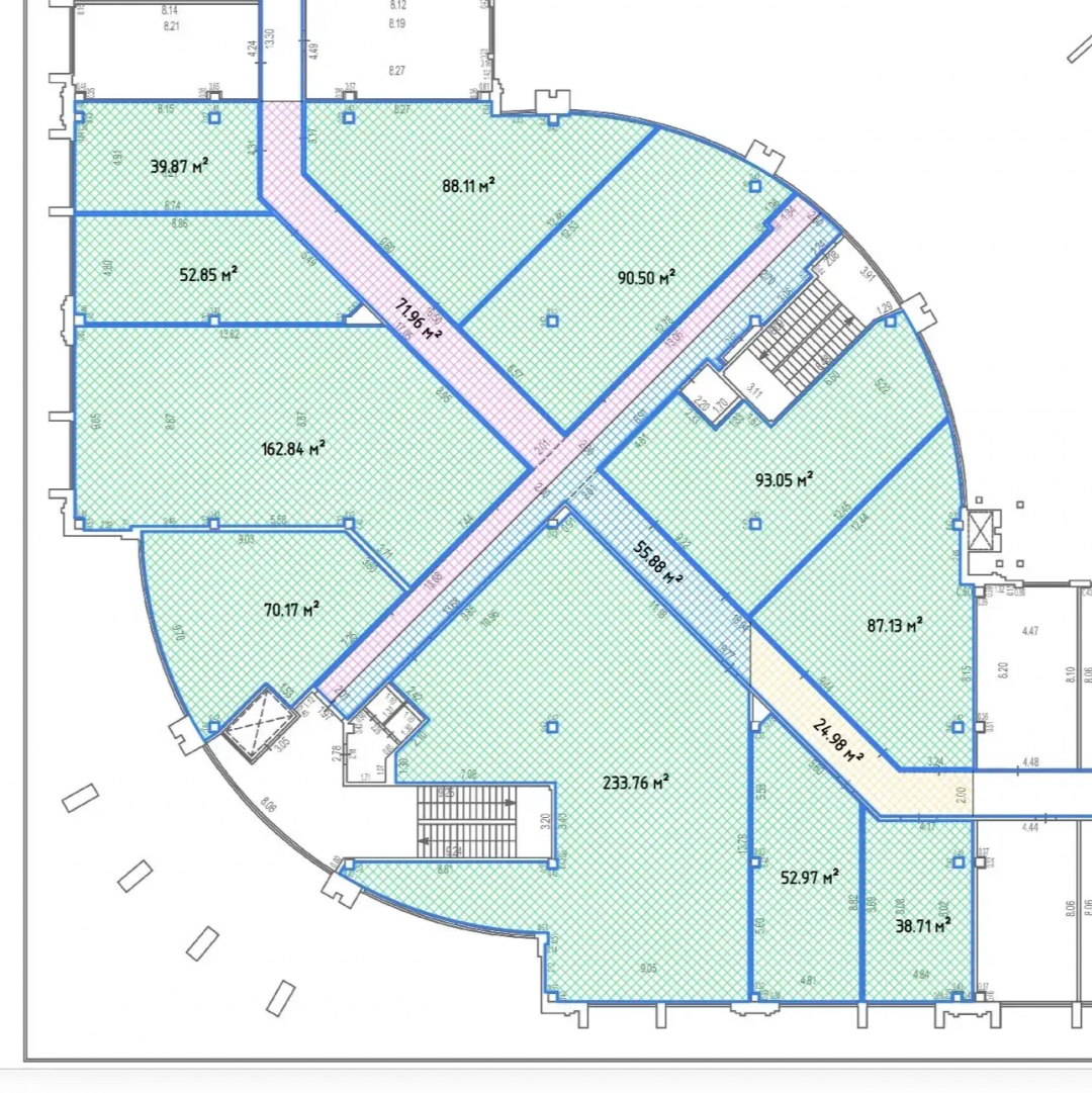
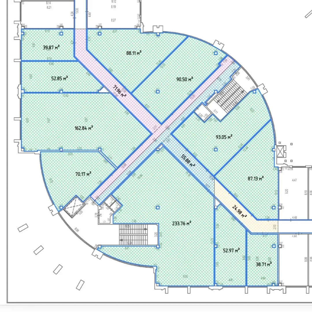
Офис, 88,1 м²

Номер лота: 133578485

Алтайский край, Барнаул г., Индустриальный, Павловский тракт, д.174, литер А

Студия 88.1 м2 в ЖК undefined корпус null этаж null

1/22

  • 88,1 м²

    Общая

  • 2025

    Год постройки

  • А+

    Энергоэффективность

  • Прямая продажа

Продам 88 м2 в бц "купол"

Арт. 133578485 Продам новое помещение 88,11 м2 в престижном Бизнес-центре "Альянс" (в народе "Купол") по адресу: г.Барнаул, ул.Павловский тракт 174 А Есть помещения на выбор: 90,5; 93 м2. Бизнес-центр сдан в эксплуатацию и уже завоевал репутацию статусного и популярного у предпринимателей города. расположен на красной линии, на оживленной улице с высоким пешеходным и автомобильным трафиком, на пересечении одной из главных артерий города - Павловского тракта и Солнечной поляны. Большая наземная парковка вокруг здания своевременно очищается от снега; Два входа: центральный и с парковки; Современный фасад, презентабельный современный интерьер; Система контроля доступа в помещения; Помещения расположены на 2 этаже; Полностью готовы полы, потолок, освещение, выводы под воду и канализация, стены готовы под покраску. Панорамное остекление, отличная вентиляция, прекрасные ночные виды города; Высокие потолки (4 м) и панорамные витражи создают ощущение простора, увеличивают естественное освещение и снижают затраты на свет; «Мокрая точка» выведена в каждом помещении, современные инженерные сети, что критически важно для многих видов деятельности; Развитая торговая, деловая и социальная инфраструктура в районе; Возможна покупка как одного помещения, так и объединение нескольких в единый блок под ваши задачи. С минимальными вложениями вы получите не просто квадратные метры, а готовое решение для быстрого и эффективного старта или расширения бизнеса в перспективном, самом густонаселенном районе города! Инвестору мы предложим заполнение площадей арендаторами. Готовы ответить на ваши вопросы, организовать показ.

Подробнее о помещении

  • Общая площадь 88,1 м²
  • Фонд Нежилой
  • Энергоэффективность А+
  • Вход Общий с улицы
  • НДС Значение не установлено

Подробнее о доме

  • Год постройки 2025
  • Тип территории Открытая
  • Количество этажей 6

Коммуникации и удобства

  • Отопление Центральное
  • Канализация Централизованная
  • Электричество 100 кВт

Расположение и инфраструктура

Купите в ипотеку

Поиск исполнителей

Выберите услугу, чтобы увидеть
список надёжных компаний

  • Оценка

    Оценка квартир, домов и земельных участков, коммерческих помещений

Похожие помещения