Торговые помещения, 552 м²

Номер лота: 78021156

Челябинская область, Саткинский район, Сатка г., Ленина пл., д.2

1/10

  • 552 м²

    Общая

  • А

    Энергоэффективность

  • Прямая продажа
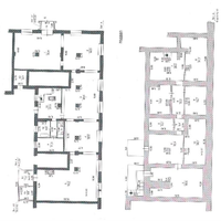
К продаже представлено нежилое помещение , назначение магазин г.Сатка пл. Ленина 2 Общая площадь 553,8 кв.м. Характеристики помещения : Наружные стены - шлакоблочные, металлические. Перегородки - шлакоблочные. Полы - бетонные, плитка . Вид отопления - собственная котельная. Наличие благоустройств - водоснабжение ( центральное ), электроснабжение, канализация, санузел. Помещение имеет 1 этаж и подвал. Подвал площадь - 233,3 кв.м. , проведенные коммуникации, коридор и склад. Первый этаж : площадь 320,5 кв.м. - торговый зал, лифт, кабинет, санузел, помещение склад, котельная, тамбур. Главный плюс этого предложения - ЛОКАЦИЯ. Расположено помещение около входа в развлекательный центр "Сонькина Лагуна" . Как его прозвали гости -"Уральский Диснейленд" . Круглогодичный поток туристов обеспечивает хороший пеший трафик. Так же расположено в шаговой доступности для жителей города. Помещение имеет косметический ремонт. Выдержанный стиль по всему первому этажу. Имеет отдельную входную группу. Большие панорамные окна . Светлая и теплая площадь. Прекрасное место для введения бизнеса. С радостью подберем удобное время для просмотра. Более подробная информация по телефону.

Подробнее о помещении

  • Общая площадь 552 м²
  • Высота потолков 4 м
  • Фонд Нежилой
  • Энергоэффективность А
  • Вход Отдельный с улицы
  • НДС Значение не установлено

Подробнее о доме

  • Вид здания Жилой дом
  • Тип территории Открытая
  • Количество этажей 2

Коммуникации и удобства

  • Электричество 320 кВт

Расположение и инфраструктура

Купите в ипотеку

Поиск исполнителей

Выберите услугу, чтобы увидеть
список надёжных компаний

  • Оценка

    Оценка квартир, домов и земельных участков, коммерческих помещений

Похожие помещения