Офис, 393,7 м²

Номер лота: 128886666

Сахалинская область, Южно-Сахалинск г., Большая Елань, Еланский проезд., д.23

Студия 393.7 м2 в ЖК undefined корпус null этаж null

1/15

  • 393,7 м²

    Общая

  • 2018

    Год постройки

  • Прямая продажа
  • Онлайн-показ

Отдельно стоящее здание под офис

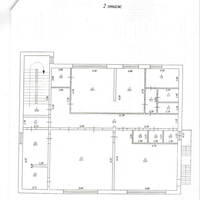
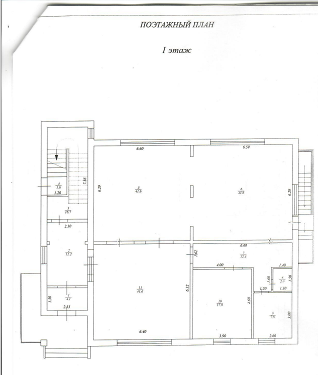
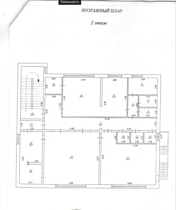
Предлагается к покупке (а также к аренде) коммерческое двухэтажное отдельно стоящее помещение с придомовой территорией 9 соток. Здание расположено в южной части Южно-Сахалинска, в динамично развивающемся районе. Прямой обзор на проспект Мира, расстояние 23 метра. Близость к крупнейшим торговым центрам: — ТРЦ «Сити-Молл» — 4 мин (2,5 км) — ТРЦ «Аллея» — 3 мин (1,5 км) Соседние объекты: частный детский сад Sun School, ресторан Crab’s Story, ТЦ «Еланский». Локация обеспечивает высокий автомобильный трафик и устойчивый спрос на коммерческие площади. Газ — экономичное отопление, важный фактор для арендаторов. Охраняется агентством «Цезарь». Удобный заезд с Еланского проезда, а также пешеходный вход с пр. Мира. Арендные показатели подтверждают высокий уровень коммерческой привлекательности объекта. Подходит для среднего офисного предприятия, сферы услуг, образовательного учреждения, магазина промышленных товаров. В помещении несколько офисных залов с большими панорамными окнами, санузлы на каждом этаже, большое сухое цокольное пространство, охраняемая парковка с тротуарной плиткой, а также выход на террасу на крыше, где можно устроить отличную релакс-зону с прекрасным видом!

Подробнее о помещении

  • Общая площадь 393,7 м²
  • Фонд Нежилой
  • Вход Отдельный со двора
  • НДС Значение не установлено

Подробнее о доме

  • Год постройки 2018
  • Тип территории Открытая
  • Количество этажей 2

Коммуникации и удобства

  • Отопление Котел газ
  • Канализация Централизованная
  • Электричество 380 кВт

Расположение и инфраструктура

Купите в ипотеку

Поиск исполнителей

Выберите услугу, чтобы увидеть
список надёжных компаний

  • Оценка

    Оценка квартир, домов и земельных участков, коммерческих помещений

Похожие помещения