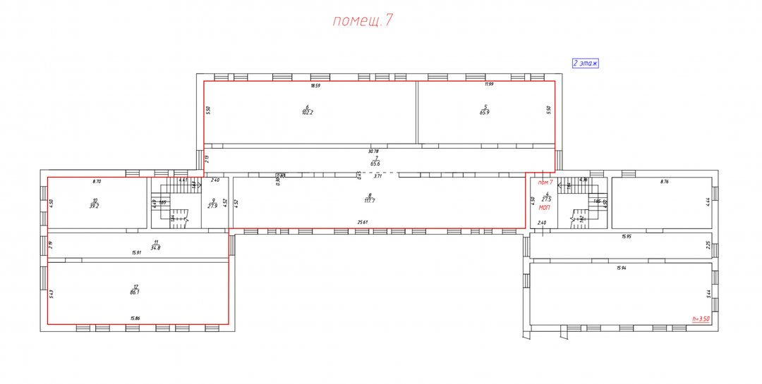
Помещение свободного назначения, 350,2 м²

Номер лота: 127834427

Кировская область, Киров г., Октябрьский, Октябрьский пр-кт., д.151, литер а

1/36

  • 350,2 м²

    Общая

  • Прямая продажа

Помещения от 36 до 560 кв. м

Ценовое предложение действует до конца 2025 года. Уникальное коммерческое помещение в центре Кирова! Это не просто квадратные метры - это готовый образ успеха и точка притяжения для Вашей клиентской аудитории. В продаже 2 этажа коммерческих помещений от 36 км. м до 560 кв. м, а также теплый и сухой оборудованный подвал. Адрес: Октябрьский пр-т, 151А. Цена: 113 000 рублей/ кв. м. + НДС 5 %. Возможен обмен на Вашу недвижимость! Здание: -2-этажное, с теплым сухим подвалом; -капитальный ремонт выполнен в 2024 году; -материал стен - 100 % кирпич; -перекрытия - железобетонные; -крыша - металлочерепица; -оборудовано двумя внутренними лестницами; -5 отдельных входов с улицы. Коммуникации: -своя газовая котельная; -скважина; -электроснабжение и канализация - центральные. Территория: -просторная и огороженная забором; -2 асфальтированные парковки. Помещения: -во всех помещениях выполнен ремонт: стены - white box, электроразводка, новые окна ПВХ, биметаллические радиаторы; -высота - 1 этажа - 3,36 м; 2 этажа - 3,20 м; подвала - 2,80 м. -каждое отдельное помещение стоит на кадастровом учёте (можно дополнительно разделить на несколько помещений); -площадь помещений, доступных к покупке: 1 этаж - 163.0 кв. м; 350,2 кв. м; 36,7 кв. м. 2 этаж - 161,5 кв. м; 557,8 кв. м. Подвал - 176,4 кв. м. Заложите фундамент своего успеха в самом выгодном месте! Свяжитесь с нами прямо сейчас для организации просмотра. Узнайте все детали и станьте следующим владельцем этого выдающегося пространства!

Подробнее о помещении

  • Общая площадь 350,2 м²
  • Фонд Нежилой
  • Вход Отдельный с улицы
  • НДС Значение не установлено

Подробнее о доме

  • Тип территории Открытая
  • Количество этажей 2

Коммуникации и удобства

  • Отопление Автономное

Расположение и инфраструктура

Купите в ипотеку

Поиск исполнителей

Выберите услугу, чтобы увидеть
список надёжных компаний

  • Оценка

    Оценка квартир, домов и земельных участков, коммерческих помещений

Похожие помещения